Omschrijving

VOORMALIG GEMEENTEHUIS VAN AMERONGEN | WONEN EN WERKEN | EINDELOOS VEEL MOGELIJKHEDEN

In hartje Amerongen staat dit prachtige stoere rijksmonument met karakter. Het voormalige gemeentehuis is volledig gerestaureerd in 2017 en heeft zijn authentieke elementen en industriële oorsprong behouden.
Het huis omarmt je door de warme sfeer en is op hoog niveau afgewerkt met 11 prachtige slanke stalen puien. Het huis heeft drie verdiepingen met 437 m2 woonoppervlakte, en ondanks de grote ruimtes is het toch gezellig en warm. Het huis is instap klaar voor een liefhebber met gevoel voor stijl en historie. De woning heeft zelfs energielabel B!

Dit is een ideale plek om wonen en werken met elkaar te combineren, alleen wonen is natuurlijk ook mogelijk, daar is rekening mee gehouden. Het huis heeft een ommuurde stadstuin van 10 x 10 meter pal op het zuiden, meer heb je niet nodig met de mooiste wandelroutes om de hoek.


WONEN LANDELIJKE STIJL MAGAZINE
Kijk in het juni nummer van Landelijke Stijl Magazine met 16 pagina's over dit unieke rijksmonument.


Het witgepleisterde huis met rode pannen ademt sfeer uit en springt met kop en schouders boven de omliggende panden uit. Het huis heeft een klassieke voorgevel, met prominent in het midden de originele voordeur uit 1850. Links een toog, de voormalige poortdoorgang, met grote ramen waar oorspronkelijk paard en wagen naar binnen konden en rechts een raampartij met roedeverdeling en fraaie luiken. Hof 7 was in de 18e eeuw een waaggebouw waar tabak werd gewogen en gekeurd. De Hof zelf is vanouds het centrum van Amerongen. Hier stonden en staan de gebouwen van het geestelijke en wereldlijke gezag: de laatgotische Andrieskerk en het voormalige gemeentehuis, dat in zijn huidige vorm uit 1951 dateert. Oorspronkelijk was hierin ook het gerechtshof gevestigd. De voormalige dorpspomp en de Wilhelminaboom op het plein onderstrepen de centrale rol die de Hof altijd in het dorpsleven heeft gespeeld.

Het prachtige kasteel Amerongen is op loopafstand, in de voormalige stallen van het kasteel is Restaurant Bentinck gevestigd met uitzicht op het kasteel en de fraaie tuinen, de ultieme plek voor een borrel, (zaken) lunch of (romantisch) diner.


* Een unieke kans voor mensen die op zoek zijn naar een zeer royaal huis met rust en ruimte en een stadstuin van maarliefst 100 m² op een prachtige plek in het pittoreske Amerongen*


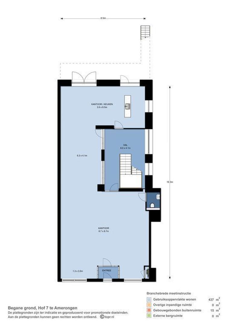
BEGANE GROND
Bij binnenkomst komt men eerst in de vestibule die gemaakt is van staal en glas. Aansluitend een grote ruimte met een diepte van ruim 18 meter, een breedte van 8,90 meter en een vrije hoogte van bijna 3 meter. Deze magnifieke ruimte is in gebruik geweest als interieur annex ontwerpstudio en voorzien van strak gestuukte wanden en een stoer industriële gevlinderde betonvloer. Het oude balkenplafond geeft de ruimte maat, maar ook heel veel sfeer. Halverwege is aan de rechterzijde het trappenhuis gesitueerd die de begane grond en de verdiepingen met elkaar verbindt. Ook hier is gekozen voor glas en zwart geanodiseerde stalen kozijnen, waardoor een luchtig geheel is ontstaan. Achter het trappenhuis loopt de ruimte door. Hier aan de linkerzijde een grote toog met openslaande deuren naar de achtergelegen stadstuin. Rechts een kleine pantry annex coffee corner.


VERDIEPING
Via het trappenhuis kom je op de verdieping. De trap herinnert aan de functie als gemeentehuis: breed, voorzien van bordessen met een knipoog naar de jaren ’80 van de vorige eeuw. De indeling is hier als volgt. Aan de zijde van het Hof is een riante woonkamer gepositioneerd. De vier grote ramen met roeden geven een prachtig licht in de kamer die vrijwel vierkant is en ruim 8,3 x 8,3 meter meet. Het houten plafond met balken en vloerdelen wordt ondersteund door zware stalen H-balken wat het geheel een New-York Loft uitstraling geeft. Hier zijn de vloeren afgewerkt in een robuuste gelakte betonvloer en zijn de wanden strak wit gestuukt. Tussen de woonkamer en de woonkeuken zit het trappenhuis met toilet en royale garderobe-wasruimte en daardoor zeer praktisch. Tevens staan zijn hier de wasmachine en droogtrommel mooi ingebouwd in een nis. Achter de eikenhouten deuren zit de CV-installatie weggewerkt waardoor het een representatieve ruimte is.

Aan de tuinzijde van het huis is de woonkeuken gesitueerd. Een fraaie stoere keuken met een royaal granieten blad van ruim 6 meter, handgemaakte Friese witjes met metaalglazuur tegen de achterwand en een fraai zes-pits RVS gasfornuis (Bertazzoni) met dubbele oven maken het leven in deze keuken bijzonder aangenaam. Ook fraai zijn de oude deuren die toegang geven tot de grote inloop proviand-servieskast. In dezelfde wand staat in een nis een dubbeldeurs koelkast uitgevoerd in RVS, eveneens van Bertazzoni. De ramen rondom geven ook hier op een plezierige manier daglicht en dat maakt deze woonkeuken tot een absoluut unique sellingpoint. Vanuit de keuken kan je met een spiltrap naar het terras op de begane grond aan de achterzijde komen.


KAPVERDIEPING
Vervolg je de trappartij dan kom je op de kapverdieping. Ook deze woonlaag ademt sfeer uit. Door de gekozen natuurlijke materialen is het ook hier goed toeven. Op deze verdieping zijn – naast de master bedroom met badkamer voorzien van wastafel, douchte en vrijstaand bad, een tweetal slaapkamers ondergebracht. Tevens is er een tweede badkamer en een separaat toilet en nog een separaat toilet. Het aardige van deze woonlaag is dat de kapconstructie prominent zichtbaar is. De houten spanten geven de ruimten sfeer en grote Velux dakramen zorgen voor daglicht. De vloeren zijn voorzien van eiken delen die afgewerkt zijn in een white wash finish. De wanden en plafonds zijn strak gestuukt en de inbouwkasten op de overloop zijn voorzien van eikenhouten panelen met industriële hang en sluitwerk en daarnaast zijn er designradiatoren geplaatst. Een lichtplan voorzien van ledverlichting (hoofdverlichting en sfeerverlichting) maken het geheel compleet.


PERCEEL
Het huis is gelegen op een perceel van 280 m2. Achter het huis ligt een volledig ommuurde stadstuin van circa 100 m2 op het zuiden. Aan de voorzijde kan gratis geparkeerd worden op het charmante Hofplein.


AMERONGEN
De naam Amerongen wordt voor het eerst genoemd in 1126. Tijdens de Tachtigjarige Oorlog vindt op 23 juni 1585 de slag bij Amerongen plaats waarbij de Spaanse troepen de Staatse troepen vernietigend heeft verslagen. Amerongen was van oudsher een agrarische gemeenschap, de schapen op de heidevelden van de Heuvelrug leverden de mest voor de akkers. Na de bedijking waren de uiterwaarden met vruchtbare rivierklei eveneens geschikt voor landbouw. Vanaf de 17e tot de 20e eeuw kende Amerongen tabaksteelt. Het dorp telt nog een tiental karakteristieke tabaksschuren uit deze tijd.


KASTEEL
Tot 1 januari 2006 was Amerongen een zelfstandige gemeente. Sindsdien is het dorp onderdeel van de nieuwgevormde gemeente Utrechtse Heuvelrug, bestaande uit Amerongen, Leersum, Doorn, Maarn, Overberg, Maarsbergen en Driebergen-Rijsenburg. Amerongen is vooral bekend dankzij Kasteel Amerongen dat vlakbij Hof 7 net ten zuiden van het dorp in de uiterwaarden ligt. Kasteel Amerongen is in het rampjaar 1672 geheel verwoest door de Fransen en in de huidige stijl weer opgebouwd. De laatste Keizer van Duitsland Wilhelm II heeft anderhalf jaar op het kasteel gelogeerd alvorens naar Huize Doorn te verhuizen. Op 28 november 1918 tekende hij in Kasteel Amerongen zijn troonsafstand.

Het kasteel is tegenwoordig een museum met een fraaie kasteeltuin. Ook is hier het eigentijdse restaurant Bentinck gevestigd in de voormalige stallen van deze buitenplaats. Voor de poort van kasteel Amerongen ligt een pittoresk plein, “De Laan” genaamd. Dit plein, dat vlakbij Hof 7 ligt, heeft verschillende functies in het dorp. Al meer dan 100 jaar is De Laan het speelterrein van de kinderen van de aangrenzende Wilhelminaschool en ook wordt ook gebruikt voor evenementen als de Grietmarkt en Koningsdag.

Tegenover Hof 7 staat, tegen de uiterwaarden aan en vlakbij het kasteel, de Andrieskerk, een laatgotische kerk waarbij de bouwstijl van de hoge toren is afgeleid van de Utrechtse Domtoren. De Protestantse Gemeente te Amerongen-Overberg (PKN) is eigenaar van de Andrieskerk. De toren is, zoals gebruikelijk sinds de Franse tijd, eigendom van de burgerlijke gemeente. De kerk is te bezichtigen en er worden rondleidingen verzorgd. Een deel van het dorp is een beschermd dorpsgezicht waaronder ook het Hof.


OMGEVING
In de omgeving zijn vele fiets- en wandelroutes, waaronder Klompenpad Cotlandenpad. Er is ook een prachtige (fiets)route tussen Leersum en Amerongen waarbij landgoed Zuylenstein de moeite waard is. Je kan daar prachtig wandelen en er is ook hier een pittoresk restaurantje Il Sogno dat de moeite van het bezoeken waard is.


KORTOM
Hof 7 is een prachtig rijksmonument, voor iemand die zoekt naar een gezellige woon- of werkplek met de charme van een dorp en de gezelligheid van de stad!


INTERESSE?
Neem contact met ons op, wij informeren u graag!

Kenmerken

Overdracht

Status
Verkocht
Oplevering
In overleg
Adres
Hof 7
Postcode
3958 CH
Plaats
Amerongen

Bouw

Soort woonhuis
Herenhuis, Tussenwoning
Soort bouw
Bestaande bouw
Bouwjaar
1850
Onderhoud binnen
Uitstekend
Onderhoud buiten
Uitstekend
Bijzonderheden
Monument, Dubbele bewoning mogelijk, Beschermd stads- of dorpgezicht, Erfgoed

Oppervlakten en inhoud

Woonoppervlakte
ca. 437m²
Perceeloppervlakte
ca. 281m²
Oppervlakte woonkamer
ca. 157m²
Inhoud
ca. 1.547m³

Indeling

Aantal kamers
6
Aantal slaapkamers
3
Aantal badkamers
2
Aantal verdiepingen
3
Voorzieningen
Alarminstallatie, Rookkanaal

Energie

Energielabel
B
Isolatie
Dakisolatie, Muurisolatie, Vloerisolatie, Volledig geisoleerd, Grotendeels dubbelglas
Warm water
C.V.-ketel
Verwarming
C.V.-ketel, Open haard
Ketel
Nefit Topline (2016, Combi-ketel, Eigendom)

Buitenruimte

Ligging
In centrum
Tuin
Achtertuin
Achtertuin
Zuidwest, 100m², 1000×1000cm

Ligging & Locatie

[ { "lat": 51.9979721, "lng": 5.4605792, "heading": 0, "pitch": 0 } ]
Bekijk kaart

Plattegronden

Hof 7, Amerongen plattegrond-0
Hof 7, Amerongen plattegrond-1
Hof 7, Amerongen plattegrond-2

Contact

Benieuwd wat wij voor u kunnen betekenen? Wij helpen u graag

Fijn dat je contact hebt opgenomen!

We zorgen ervoor dat je spoedig een reactie van ons ontvangt op:

Sorry, we kunnen helaas niet met zekerheid vaststellen of je een mens of een geautomatiseerde bot/spammer bent. Hierdoor kunnen we het formulier dat je hebt ingevuld niet verzenden. Probeer het opnieuw of neem direct contact op met de makelaar via e-mail.

Er is iets mis gegaan met het versturen van het formulier.
Controleer of u alle velden (goed) heeft ingevoerd en probeer het nog een keer.

Persoonlijke gegevens

recaptcha
reCAPTCHA
PrivacyTerms