TUSSEN DE MAAS EN DE HEMEL

MOLENDIJK 3 BATENBURG
Tussen de Maas en de hemel – Drie high-end loftappartementen in een schitterende basiliek


IN ÉÉN OOGOPSLAG, VERGUNNING PLAN EN MOGELIJKHEDEN IN HET KORT
De Sint Victorbasiliek in Batenburg is een rijksmonument uit 1872–1874 op een markante plek tussen het historische dorp en de uiterwaarden van de Maas. De kerk heeft nu een vloeroppervlakte van circa 400 m², een inhoud van meer dan vijfduizend kubieke meter en staat op een perceel van 1.110 m². Bij de verkoop hoort een volledig afgerond en onherroepelijk vergunningstraject voor drie royale loftappartementen (van circa 240 m² per appartement) en een zelfstandig torenappartement, gebaseerd op een ontwerp van KRAFT Architecten dat nauw aansluit op de ruimtelijke structuur van de basiliek. De plannen zijn technisch uitvoerbaar, de constructie is solide en het casco laat zich goed lezen voor verdere ontwikkeling.

Alle documentatie die voor de vergunning is gebruikt, inclusief werktekeningen, onderzoeken, constructieve rapporten en het bouwhistorisch onderzoek, maakt deel uit van het dossier. Daarnaast is er een aannemer waar de plannen al mee besproken zijn die het project kan realiseren, ondersteund door een actuele en gespecificeerde bouwkostenraming. Hiermee ligt er een volledig voorbereide basis voor de transformatie van dit rijksmonument tot vier zelfstandige woningen binnen een karaktervolle architectonische context. De ligging aan de Maas en de nabijheid van Nijmegen, Oss en ’s-Hertogenbosch maken het tot een bijzondere woonplek binnen het Land van Maas en Waal.


OMSCHRIJVING
We kunnen veilig stellen dat onze lieve Here altijd uitstekende vastgoedadviseurs heeft gehad; Zijn huizen staan altijd op de fraaiste plekjes, centraal of juist met uitzicht over het landschap, en de entree is altijd iets bijzonders. Deze kerk, de Sint Victorkerk in Batenburg, is een toplocatie in het Land van Maas en Waal. Hier, op de rand van dorp en rivier, staat een basiliek die ruim anderhalve eeuw geleden op bijna theatrale wijze werd neergezet. Een plek waar ruimte, ritme en rust elkaar vanzelf vinden.

De bouw van deze kerk was op zichzelf een bijzonder verhaal. Tussen 1872 en 1874 werd de basiliek volledig gefinancierd door Jan Steeg en zijn moeder Geertrui Smits, die met hun boerenbedrijf een aanzienlijke welstand hadden opgebouwd. Na het overlijden van Steeg senior besloten moeder en zoon dat Batenburg een nieuwe kerk verdiende, een die zichtbaar zou zijn van ver en de gemeenschap bijeen zou brengen.

Voor het ontwerp werd architect Cornelis van Dijk ingeschakeld, een vakman met een scherp oog voor neogotische vormentaal. Zijn stijl, beïnvloed door Van Tulder, is duidelijk herkenbaar in de spitsbogen, het verticale ritme, het metselwerk en de architectonische details die nog altijd in het casco aanwezig zijn.


SINT VICTOR-BASILIEK
De Sint Victorkerk is gewijd aan de beschermheilige van de molenaars. Vanaf de overzijde van de Maas is de naaldspits al zichtbaar; een baken in het waterlandschap en een herkenningspunt voor wie het riviergebied doorkruist. Het gebouw staat precies op de overgang van het oude stadje naar de uiterwaarden. Met de stoep aan de dijk en het koor naar het water vormt de basiliek een markant knooppunt in het rivierenlandschap van Gelderland.

Binnen valt direct de ruimtelijke opbouw op. De kleuren die Van Dijk ooit bedoelde – uitgewerkt na bouwhistorisch onderzoek – zijn zichtbaar tot in de details. Glas-in-lood vertelt verhalen in gefilterd licht, de Toscaanse zuilen dragen Korintische kapitelen met acanthusbladeren, en de polychrome tegeltableaus benadrukken ritme en verticaliteit. De beelden die langs de wanden staan kijken mee naar het volgende hoofdstuk van het gebouw: de transformatie naar woningen binnen een rijksmonument.


INDELING – HET CASCO VAN EEN RIJKSMONUMENT
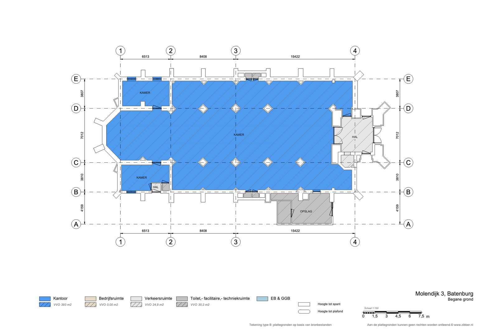
De kerk is al geruime tijd buiten gebruik, maar staat in een staat die uitstekend geschikt is voor herbestemming tot woning of loft. Het schip heeft een lengte van ruim vijfendertig meter en een hoogte van ongeveer veertien meter tot aan de gewelven. De totale bruto vloeroppervlakte bedraagt circa zevenhonderdtwintig vierkante meter. De inhoud ligt boven de vijfduizend kubieke meter, waardoor de verticale werking en de ruimtelijke ritmiek overtuigend aanwezig blijven.

Volgens het bouwhistorisch onderzoek verkeert de constructie in goede staat. Gewelven en dragende muren zijn stabiel, de oorspronkelijke opzet is helder en het casco laat zich goed lezen. Ook de kapconstructie verkeert in een gezonde staat; de spanten, gordingen en verbindingen vormen een solide basis voor een volgende bouwfase. De glas-in-loodramen van Nicolas en Mengelberg zorgen voor een rustige, gefilterde lichtval die kenmerkend is voor dit rijksmonument.

Eerdere installaties zijn verwijderd, waardoor het gebouw klaar is voor een nieuwe technische opbouw volgens de eisen van deze tijd. De maat en hoogte bieden ruimte voor duurzame oplossingen zoals warmtepompen, vloerverwarming en balansventilatie, zorgvuldig in te passen zonder afbreuk te doen aan de monumentale structuur.

Het perceel van 1.110 m² vormt een samenhangend geheel rondom de kerk. De situering aan de dijk en de zichtlijnen op de Maas maken het gebouw tot een herkenningspunt binnen Batenburg. Parkeren vindt plaats langs de Molendijk. Bewoners krijgen de beschikking over individuele bergingen op de begane grond. De huidige bestemming ondersteunt de vergunde herontwikkeling en maakt de beoogde woonfunctie mogelijk.


ONHEROEPPELIJKE OMGEVINGSVERGUNNING: 3 LOFTS EN 1 TORENAPPARTEMENT
Het herbestemmen van een rijksmonument vraagt tijd, aandacht en nauwkeurigheid. In de afgelopen jaren is gewerkt aan een plan dat technisch uitvoerbaar is en tegelijk recht doet aan de monumentale structuur van de Sint Victorbasiliek. Dat omvatte onder meer onderzoek naar de bouwkundige staat, gesprekken met gemeente Wijchen, adviesrondes met specialisten en bouwhistorische analyses die bepalend waren voor de inpassing van nieuwe vloeren, trappenhuizen en installaties.

In overleg met de Rijksdienst voor het Cultureel Erfgoed is gekeken naar materiaalgebruik, reversibiliteit van ingrepen, zichtlijnen en behoud van monumentale onderdelen. Het ontwerp is meerdere keren verfijnd om de schaal en ritmiek van het gebouw te respecteren, waardoor de nieuwe woonstructuur zich logisch in het bestaande casco voegt.

Dit proces heeft geleid tot een onherroepelijke omgevingsvergunning voor drie loftappartementen van circa 240 m² en een zelfstandig torenappartement in de westtoren. De huisnummers Molendijk 3A tot en met 3D zijn vastgesteld. Het plan is uitvoerbaar en volledig juridisch helder. Voor wie zoekt naar een kerk te koop in Gelderland, monumentaal wonen of een rijksmonument verbouwen tot woning biedt dit project een kant-en-klare basis.

Een aannemer met ervaring in monumentale transformaties is al gebriefd over de opdracht. Een overzicht van de bouwkosten is beschikbaar op aanvraag. Akoestische advisering maakt deel uit van het dossier, wat bijdraagt aan een zorgvuldig wooncomfort in het toekomstige gebouw.

De verkoop omvat het volledige vergunningstraject, inclusief bouwkostenramingen, werktekeningen, technische omschrijvingen, constructieve rapporten, de ruimtelijke onderbouwing, het bouwhistorisch onderzoek en het RCE-advies. Subsidies voor onderhoud van rijksmonumenten kunnen onder voorwaarden worden benut.


KRAFT ARCHITECTEN
KRAFT Architecten uit Arnhem heeft de opgave vertaald in een ontwerp dat zorgvuldig omgaat met de ruimtelijke kracht van de basiliek. Het bureau staat bekend om ontwerpen met een sterke verankering in context, ambacht en onderzoek. Die benadering is zichtbaar in de plannen voor de drie loftappartementen en het torenappartement.

De hoofdstructuur van de kerk blijft leidend. De hoogte van het middenschip, de ritmiek van de bogen en de zichtlijnen langs de zuilenrij vormen het fundament van de nieuwe woonruimten. De lofts krijgen vier woonlagen in open verbinding, met doorkijken naar het oorspronkelijke interieur. Nieuwe vloeren en wanden zijn zo geplaatst dat de monumentale structuur leesbaar blijft. De lichtinval van de glas-in-loodramen is meegenomen in de opzet van de plattegronden. De toren vormt een zelfstandig woonvolume. De bestaande trappartijen, bordessen en verticale opbouw bieden ruimte voor een compacte woonvorm met zicht op dorp, dijk en Maas.

KRAFT heeft het ontwerp tot op detailniveau uitgewerkt. Liftschachten, bergingen, installatieruimten en ontsluitingen zijn logisch geïntegreerd. De entrees bevinden zich in het westportaal. De bergingen liggen op de begane grond. De ruimtelijke beleving blijft aanwezig, terwijl hedendaags wonen op een zorgvuldige manier wordt toegevoegd.


BATENBURG – EEN VAN DE OUDSTE NEDERZETTINGEN VAN GELDERLAND
Batenburg is een van de oudste nederzettingen van Gelderland. De resten van het kasteel, vermoedelijk gebouwd op een Romeinse fundering, vormen een stille herinnering aan een vroeg verleden. Het dorp telt circa achthonderd inwoners, een mix van mensen die hier al generaties wonen, jonge huishoudens en forensen die werken in Nijmegen, Oss of ’s-Hertogenbosch. De ligging aan de Maas maakt het tot een rustige en ruimtelijke woonplek binnen het Land van Maas en Waal.

Het dorp ligt strategisch ten opzichte van de A50, A73 en A326, waardoor Nijmegen, Oss en ’s-Hertogenbosch goed bereikbaar zijn. Station Ravenstein ligt op tien minuten afstand en biedt een directe treinverbinding richting Randstad en Ruhrgebied. Ook station Wijchen ligt binnen bereik. Dagelijkse voorzieningen liggen in Ravenstein, Wijchen en Oss.


BUITENRUIMTE
Voor de buitenruimte is een ingetogen ontwerp gemaakt dat de positie van de basiliek respecteert. Iedere loft krijgt op de begane grond een eigen buitenruimte aan de zijde van de uiterwaarden. Het torenappartement krijgt gebruiksrecht binnen de gezamenlijke tuin. De totale buitensituatie blijft één samenhangend geheel, met zicht op de Maas en het omringende landschap.


10 REDENEN OM DIT OBJECT TE KOPEN
1. De ruimtelijkheid van het schip.
2. De lichtval door de glas-in-loodramen van Nicolas en Mengelberg.
3. De ligging aan de Maas met zicht op het rivierlandschap.
4. De historische structuur van Batenburg als vanzelfsprekende context.
5. Drie lofts en een torenappartement binnen de monumentale opzet.
6. Een solide casco dat klaar is voor herontwikkeling.
7. Direct kunnen starten met bouwen dankzij een beschikbare aannemer.
8. Volledige documentatie en bouwkostenramingen aanwezig.
9. De mogelijkheid om met vrienden of bekenden naast elkaar te wonen.
10. Eigen inbreng mogelijk in indeling en afwerking, of de optie om er één woonhuis van te maken.


VOOR WIE
Dit project is geschikt voor liefhebbers van architectuur, erfgoed en ruimtelijk wonen. De lofts en het torenappartement vormen zelfstandige woningen binnen één monumentaal geheel, aantrekkelijk voor vrienden of verwante huishoudens die samen willen wonen met behoud van privacy. Voor bewoners die zoeken naar een eigentijdse variant op een woonhof biedt de opzet een logische basis. De kerk is tevens interessant voor wie wonen wil combineren met een atelier of praktijkruimte. Tot slot biedt het casco de mogelijkheid om het geheel samen te voegen tot één groot woonhuis binnen een architectonische context die nergens anders voorkomt.


KORTOM
De Sint Victorbasiliek staat op een plek waar geschiedenis, water en architectuur samenkomen. Het rijksmonument is volledig voorbereid op een nieuwe fase: een compleet dossier met ontwerp, onderzoeken en een onherroepelijke omgevingsvergunning ligt klaar voor drie loftappartementen en een torenwoning.

Het gebouw uit 1872–1874, ontworpen door Cornelis van Dijk, beschikt over een bruto vloeroppervlak van circa 720 m², een inhoud van meer dan vijfduizend kubieke meter en een perceel van 1.110 m². De plannen van KRAFT Architecten sluiten nauw aan op de ruimtelijke structuur van de basiliek en maken een heldere transformatie mogelijk.

Met zijn ligging aan de Maas, in het Land van Maas en Waal en binnen bereik van Nijmegen, Oss en ’s-Hertogenbosch, vormt de kerk een bijzonder uitgangspunt voor wonen in erfgoed. Wat rest is de nieuwe eigenaar die dit gebouw verder brengt.


DETAILS & CIJFERS
Rijksmonumentnummer 8718
Bouwjaar 1872–1874
Architect Cornelis van Dijk
Kadastraal Batenburg D 589
Perceel 1.110 m²
Bruto vloeroppervlak circa 720 m²
Inhoud circa 5.000–5.500 m³
Vergund drie lofts van circa 240 m²
Optioneel torenappartement
Omgevingsvergunning OV20190423, onherroepelijk
Documentatie en bouwkosten op aanvraag

Kenmerken

Overdracht

Vraagprijs
€ 900.000 k.k.
Status
Beschikbaar
Oplevering
In overleg
Adres
Molendijk 3
Postcode
6634 KE
Plaats
Batenburg

Bouw

Soort woonhuis
Herenhuis, Vrijstaande woning
Soort bouw
Bestaande bouw
Bouwjaar
1872
Onderhoud binnen
Redelijk
Onderhoud buiten
Redelijk
Bijzonderheden
Monument, Dubbele bewoning mogelijk, Kluswoning

Oppervlakten en inhoud

Woonoppervlakte
ca. 720m²
Perceeloppervlakte
ca. 1.110m²
Inhoud
ca. 5.000m³

Indeling

Aantal kamers
2
Aantal verdiepingen
2

Buitenruimte

Ligging
Aan het water, Aan rustige weg, Vrij uitzicht, Open ligging, Aan vaarroute
Tuin
Tuin rondom

Ligging & Locatie

[ { "address": "Molendijk 3", "zipCode": "6634 KE", "city": "Batenburg", "lat": 51.8225636, "lng": 5.6309376, "heading": 0, "pitch": 0 } ]
Bekijk kaart

Contact

Benieuwd wat wij voor u kunnen betekenen? Wij helpen u graag

Fijn dat je contact hebt opgenomen!

We zorgen ervoor dat je spoedig een reactie van ons ontvangt op:

Sorry, we kunnen helaas niet met zekerheid vaststellen of je een mens of een geautomatiseerde bot/spammer bent. Hierdoor kunnen we het formulier dat je hebt ingevuld niet verzenden. Probeer het opnieuw of neem direct contact op met de makelaar via e-mail.

Er is iets mis gegaan met het versturen van het formulier.
Controleer of u alle velden (goed) heeft ingevoerd en probeer het nog een keer.

Persoonlijke gegevens

recaptcha
reCAPTCHA
PrivacyTerms