Geboortehuis van Kiliaen van Rensselaer (grondlegger van New York)

Geboortehuis van Kiliaen van Rensselaer: Hoogstraat 12, Hasselt

Aan de Hoogstraat 12 in Hasselt bevindt zich een bijzonder rijksmonument dat dateert uit het begin van de 16e eeuw. Dit gotische huis, gebouwd in 1500, is uniek in zijn soort en staat bekend als het geboortehuis van Kiliaen van Rensselaer (1586-1643). Van Rensselaer was een invloedrijke Nederlandse koopman en een van de grondleggers van de huidige staat New York. Zijn nalatenschap leeft voort in de naam Rensselaerswijck, een van de meest succesvolle Nederlandse koloniale nederzettingen in Amerika.

Het huis zelf is een prachtig gerestaureerd pand met een authentieke uitstraling en een indrukwekkend volume. Het beschikt over een kelder, een begane grond met een vrije hoogte van circa 6 meter, een entresol, een grote verdieping en daarboven een enorme zolder. Deze ruimtelijke opzet maakt het pand niet alleen historisch waardevol, maar ook spraakmakend.

Kiliaen van Rensselaer werd geboren in dit huis en groeide op in Hasselt voordat hij naar Amsterdam vertrok. In Amsterdam werd hij een rijk man door zijn handel in diamanten en parels. Hij speelde een cruciale rol in de financiering en het bestuur van de West-Indische Compagnie (WIC), die zich richtte op handel en kolonisatie in Amerika, Afrika en de West-Indische eilanden. Van Rensselaer was ook de eerste patroon van Rensselaerswijck, een groot landgoed in het huidige New York.

Dit geboortehuis van Kiliaen van Rensselaer staat symbool voor zijn indrukwekkende leven en nalatenschap dat in Hasselt zijn oorsprong vond. De restauratie door voorgaande eigenaars heeft ervoor gezorgd dat dit unieke stukje geschiedenis bewaard is gebleven voor toekomstige generaties. Bovendien blijft de Hoogstraat 12 een monumentale herinnering aan een man die een belangrijke rol speelde in de Nederlandse maar ook de Amerikaanse geschiedenis.


ALGEMEEN
De Hoogstraat nummer 12 is een monumentaal pand met een gerestaureerde 17e-eeuwse puntgevel, voorzien van zandstenen waterlijsten en afdekplaten, en een uitgekraagde toppilaster op een zandstenen console met een engelenkopje. Het pand zelf dateert uit het begin van de 16e eeuw. Tot enkele decennia terug diende het onder andere als bibliotheek en clubhuis voor de plaatselijke muziekvereniging.

Daarna is het gerestaureerd en teruggebracht naar een woning in een zeer sobere en authentieke stijl. Hoewel het huis aan de Hoogstraat ligt, bevindt de entree zich aan de achterzijde, bereikbaar via een gezellig steegje aan de rechterkant van het object. Via de ommuurde stadstuin (circa 55 m²) kom je bij het huis. Aan de achterzijde zijn er toegang tot de kelder via een buitentrap en de toegang tot de begane grond.


BEGANE GROND
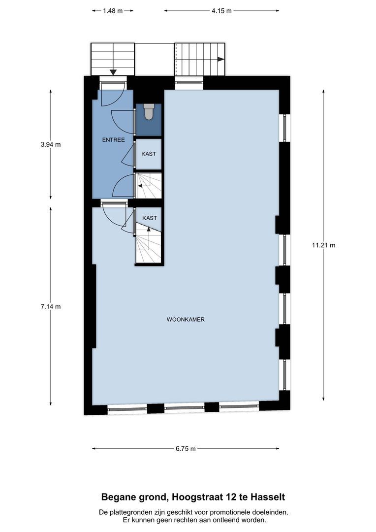
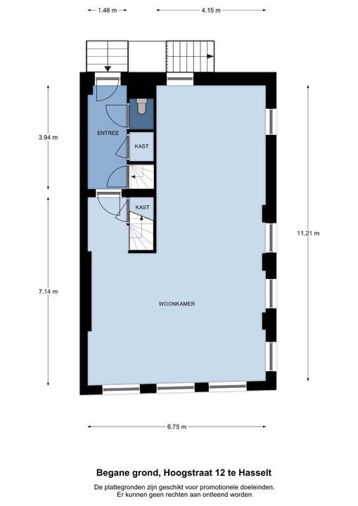
Via de voordeur - aan de rechterzijde van de achtergevel - kom je in de entreehal. Hier bevinden zich rechtsachter, achter een eikenhouten wand die past bij de stijl en de datering van het huis, een wc, een kleine pantry, een kelderdeur en aan het einde van de gang de deur naar de voorzijde van het huis. Hier bevindt zich de woonkamer.

De woonkamer bestaat uit een grote ruimte van circa 45 m² met een vrije hoogte van circa 6 meter, en een kleinere ruimte aan de achterzijde van circa 18 m². De hoge ramen aan de voorzijde laten het daglicht prachtig binnen en bieden een blik op de Hoogstraat. In deze ruimte bevindt zich aan de rechterzijde een grote schouw. Ga je naar links, dan kijk je naar de raampartij aan de achterzijde, voorzien van glas-in-loodramen, met zicht op de binnenplaats. Boven deze ruimte bevindt zich een entresol van circa 25 m², die bereikbaar is via een eikenhouten trap in de kamer.


ENTRESOL
Via de trap kom je op de entresol. Hier is achter een wand een eenvoudige badkamer (circa 5 m²) gesitueerd, voorzien van een dubbele wastafel, bad, douche en wc. Tevens is hier aan de rechterzijde een prachtige plek voor een werkruimte met zicht op de kamer, de Hoogstraat aan de voorzijde en de stadstuin aan de achterzijde.


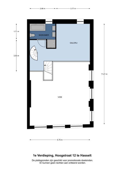
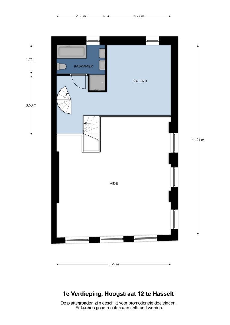
EERSTE VERDIEPING
Met een spiltrap kom je op de eerste verdieping. Hier is een royale overloop en twee slaapkamers. Een aan de voorzijde en een aan de achterzijde. Naast de slaapkamer aan de voorzijde bevindt zich een badkamer. Op de overloop is via een vlizotrap de grote zolder bereikbaar.


ZOLDER
De grote zolder bestaat uit een vliering van circa 45 m2 meter en aansluitend via een kleine deur een grote berging van circa 27 m2. Deze zolder leent zich bij uitstek voor het realiseren van twee (slaap)kamers. Hiervoor dient wel een vaste trap naar de zolder te worden gerealiseerd.


KELDER
De kelder is bereikbaar via de entreehal. Een stenen trap brengt je naar misschien wel de grootste verrassing van dit huis. Onder het gehele huis bevindt zich een meer dan stahoge gewelvenkelder met een vloeroppervlak van circa 65 m². De kelder bestaat uit twee ruimtes. In de eerste ruimte bevindt zich een keuken en een berging. Vanuit deze keuken kun je via een kleine opstap naar de buitendeur, die naar de stadstuin leidt. Achter de keukenruimte bevindt zich aan de straatzijde een tweede prachtige middeleeuwse gewelvenkelder met een vloeroppervlak van circa 45 m².


HASSELT: EEN HISTORISCHE HANZESTAD
Hasselt, gelegen nabij Zwolle, is een historische Hanzestad die een rijke geschiedenis combineert met moderne voorzieningen. Deze stad, onderdeel van het Hanzeverbond, heeft pittoreske straatjes, oude gevels en sfeervolle grachten die herinneren aan vervlogen tijden.

Hasselt biedt diverse voorzieningen die het leven hier comfortabel maken. In het centrum vind je verschillende winkels, cafés en restaurants waar je kunt genieten van lokale specialiteiten. Voor de dagelijkse boodschappen zijn er meerdere supermarkten en speciaalzaken beschikbaar. Daarnaast heeft Hasselt goede onderwijsvoorzieningen, variërend van basisscholen tot middelbare scholen, waardoor het een ideale plek is voor gezinnen.

Hasselt is goed bereikbaar, zowel met de auto als het openbaar vervoer. De stad ligt op een korte afstand van Zwolle, een belangrijk knooppunt in het Nederlandse wegennet. Via de A28 en de N331 ben je snel in Hasselt en heb je vlotte verbindingen naar de rest van het land. Voor degenen die de voorkeur geven aan het openbaar vervoer, zijn er regelmatige busdiensten naar Zwolle en omliggende steden, evenals een treinstation in Zwolle dat directe verbindingen biedt naar de grote steden in Nederland. Ook leuk om te weten Hasselt is ook over het water goed bereikbaar. De stad ligt aan het Zwarte Water, wat het mogelijk maakt om per boot de stad te bezoeken.


FINANCIERINGSMOGELIJKHEDEN VOOR RIJKSMONUMENTEN
Aankoop van rijksmonumenten wordt doorgaans gefinancierd door reguliere banken. Elk restauratie- of onderhoudsplan is uniek en vereist specifieke financiering. Voor restauratie, verduurzaming en verbouwingen kan men terecht bij het Nationaal Restauratiefonds (NRF). Dit geldt niet alleen voor rijksmonumenten, maar ook voor gemeentelijke monumenten. Het NRF biedt diverse mogelijkheden, van laagrentende leningen tot subsidies, voor zowel particuliere als gemeentelijke monumenten. Hieronder een overzicht van de financieringsmogelijkheden:

Restaureren:
- Laagrentende leningen: Particulier 1.4%, Zakelijk 1.5%.
- Maximale lening: € 300.000 voor woonobjecten € 10 miljoen voor niet-woonobjecten,
- Woonhuisregeling: 38% subsidie tot €70.000.

Verduurzamen:
- Laagrentende leningen voor bijvoorbeeld isolatie, warmtepomp, LED-verlichting, enzovoort
- Particulier 1.4%, zakelijk 1.5%.

Tevens de ISDE regeling voor monumenten van toepassing: Investeringssubsidie Duurzame Energie (ISDE) is beschikbaar voor zakelijke en particuliere monumenten. En subsidies kunnen worden gebruikt voor diverse maatregelen, waaronder isolatie, warmtepompen en zonneboilers.

Herbestemming:
- Verbouwingskosten: Financiering tegen marktconforme lening van 4.2%.

Eigen Woonhuisregeling:
- 38% subsidie op onderhoudskosten, aanvragen na afloop van het jaar.
- Gedetailleerde facturen en inspectierapporten nodig voor aanvragen boven €70.000.
- Kosten voor verduurzaming en comfortverbetering zijn niet subsidiabel.
- Keuze of laagrentende lening of eigen woonhuisregeling dus niet en-en

Op monumenten.nl is een overzicht van beschikbare regelingen op basis van postcode, type monument en geplande werkzaamheden te vinden. Voor meer informatie, bezoek monumenten.nl en restauratiefonds.nl.


KORTOM
Hasselt is een prachtige historische Hanzestad die de perfecte balans biedt tussen geschiedenis en moderne gemakken. Met uitstekende voorzieningen en een gunstige bereikbaarheid is het een ideale plek om te wonen voor stellen, gezinnen, werkenden en iedereen die op zoek is naar een unieke woonomgeving. Het gotische rijksmonument aan de Hoogstraat 12 is een prachtig gerestaureerd, monumentaal pand met een rijke geschiedenis en authentieke details. Het biedt ruime en unieke woonruimtes, ideaal voor het herenstellen, verzamelaars of puristen die op zoek zijn naar een huis met geschiedenis.

Kenmerken

Overdracht

Status
Verkocht
Oplevering
In overleg
Adres
Hoogstraat 12
Postcode
8061 HC
Plaats
Hasselt

Bouw

Soort woonhuis
Herenhuis, Halfvrijstaande woning
Soort bouw
Bestaande bouw
Bouwjaar
1600
Onderhoud binnen
Goed
Onderhoud buiten
Goed
Bijzonderheden
Monumentaal pand, Monument, Erfgoed

Oppervlakten en inhoud

Woonoppervlakte
ca. 232m²
Perceeloppervlakte
ca. 179m²
Oppervlakte woonkamer
ca. 46m²
Overig oppervlakte
ca. 52m²
Inhoud
ca. 985m³

Indeling

Aantal kamers
5
Aantal slaapkamers
3
Aantal verdiepingen
3

Energie

Isolatie
Voorzetramen
Warm water
C.V.-ketel
Verwarming
C.V.-ketel
Ketel
(Combi-ketel, Eigendom)

Buitenruimte

Ligging
Aan rustige weg, In centrum
Tuin
Achtertuin
Achtertuin
West, 64m², 850×750cm
Schuur
Vrijstaand hout
Faciliteiten schuur
Voorzien van elektra

Ligging & Locatie

[ { "address": "Hoogstraat 12", "zipCode": "8061 HC", "city": "Hasselt", "lat": 52.5913166, "lng": 6.0888009, "heading": 0, "pitch": 0 } ]
Bekijk kaart

Plattegronden

Hoogstraat 12, Hasselt plattegrond-0
Hoogstraat 12, Hasselt plattegrond-1
Hoogstraat 12, Hasselt plattegrond-2
Hoogstraat 12, Hasselt plattegrond-3
Hoogstraat 12, Hasselt plattegrond-4

Contact

Benieuwd wat wij voor u kunnen betekenen? Wij helpen u graag

Fijn dat je contact hebt opgenomen!

We zorgen ervoor dat je spoedig een reactie van ons ontvangt op:

Sorry, we kunnen helaas niet met zekerheid vaststellen of je een mens of een geautomatiseerde bot/spammer bent. Hierdoor kunnen we het formulier dat je hebt ingevuld niet verzenden. Probeer het opnieuw of neem direct contact op met de makelaar via e-mail.

Er is iets mis gegaan met het versturen van het formulier.
Controleer of u alle velden (goed) heeft ingevoerd en probeer het nog een keer.

Persoonlijke gegevens

recaptcha
reCAPTCHA
PrivacyTerms
}