Omschrijving

SCHOOLSTRAAT 8, HINDELOOPEN
De Kleine Vermaning – wonen in een voormalig doopsgezind kerkje uit 1680

In het hart van Hindeloopen staat De Kleine Vermaning, een voormalig doopsgezind kerkje uit 1680 dat in de jaren negentig met aandacht en vakmanschap is verbouwd tot woonhuis met atelier. Het gebouw maakt deel uit van het beschermde stadsgezicht en sluit naadloos aan bij de bescheiden schaal van de historische stad. Binnen is een rustige ruimtelijke opbouw ontstaan. Het schip fungeert als atelier, de entresol als werkplek en de verdieping als lichte leefruimte onder het tongewelf. Het materiaalgebruik is natuurlijk en doorleefd, met houten gebinten, panelen en historische kozijnen die de geschiedenis van het gebouw voelbaar laten zonder nadruk. Buiten ligt een besloten tuin met appelboom en een eigen parkeerplaats voor twee auto’s. De ligging is centraal in Hindeloopen, op korte loopafstand van de haven, het IJsselmeer en de voorzieningen van de stad. Dankzij de ligging in Súdwest-Fryslân zijn Amsterdam, Zwolle en Leeuwarden goed bereikbaar.


INLEIDING
De Schoolstraat is een van die smalle, bijna verstilde straten waarin de historische structuur van Hindeloopen nog onverminderd aanwezig is. Tussen vissershuisjes en traditionele bebouwing staat De Kleine Vermaning: een ingetogen kerkje met symmetrische voorgevel, baksteen in zachte tinten en een kleine dakruiter. Het tongewelf vormt binnen het herkenbare hart van de ruimte. De transformatie tot woning heeft deze structuur niet verstoord; het architectonisch ritme van het kerkje is zelfs sterker voelbaar geworden. Licht valt van meerdere hoogten de ruimte in, en de opeenvolging van open en meer intieme delen geeft het huis een natuurlijke samenhang.


ACHTERGROND & GESCHIEDENIS
Het kerkje werd rond 1680 gebouwd voor de doopsgezinde gemeenschap. De sobere vorm past bij de traditie van schuilkerken en vergaderhuizen in Noord-Nederland. Door de eeuwen heen zijn er aanpassingen gedaan, maar het silhouet bleef herkenbaar.

In 1995 werd het gebouw geschikt gemaakt voor bewoning. Vervolgens vond in 1997–1998 een restauratie plaats waarin fundering, vloeren, wanden, dakwerk, ramen en installaties zijn vernieuwd of hersteld. Het voegwerk werd aangepakt en de houten ramen en deuren zijn vervangen of geconserveerd. De restauratie volgde de oorspronkelijke maatvoering, waardoor de typologie van het kerkje behouden bleef. Het resultaat is een woonhuis waarin de verschillende tijdlagen elkaar versterken.


DE TOUR
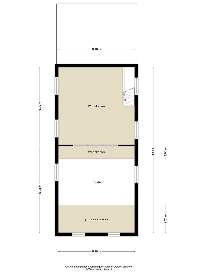
Via de voordeur komt men direct in het schip, nu ingericht als atelier en ontvangstruimte. De hoogte en het ritme van de ramen geven deze ruimte een stille monumentaliteit. De kansel vormt een markant punt in de ruimte en verbindt het huidige gebruik met de geschiedenis van het gebouw.

Een trap naast de kansel leidt naar de entresol, een licht werkgebied dat uitkijkt over het atelier. Aan de andere zijde van deze tussenlaag ligt de woonkamer, onder het tongewelf. Het gewelf spreidt zich als een zachte boog over de ruimte, waarbij het licht de houten dagkanten en panelen volgt. De houtkachel vormt een vertrouwd middelpunt.

Aan de achterzijde bevindt zich de tweede entree. De hal is voorzien van estriken in een zachte terracottatint en vormt de overgang naar de keuken in de voormalige kosterij. De keuken heeft een landelijke, werkbare indeling met L-vormige opstelling, Smeg-fornuis, houtkachel en ruimte voor een grote tafel.

Achter de keuken liggen een logeerkamer, een tweede badkamer en de hoofdslaapkamer met eigen badkamer. De slaapkamer wordt gekenmerkt door een hoog geplaatst raam en een rustige afwerking. De ensuite badkamer heeft een vrijstaand ligbad en een wastafel in travertin.


BEGANE GROND
Het schip vormt de grootste en meest open ruimte van het huis. De vloer is rustig en egaal, passend bij het ateliergebruik. Keuken en slaapvertrekken liggen in het aangebouwde volume, waar de schaal kleiner is en de sfeer meer gericht op wonen. De hoofdslaapkamer heeft directe toegang tot een badkamer met ligbad en travertinen wastafel.


VERDIEPING
De entresol hangt als een lichte tussenlaag boven het atelier en heeft een open verbinding met het schip. De woonkamer onder het tongewelf voelt door de hoogte, het hout en de lichtval tegelijk ruim en beschut. Het gebogen plafond zorgt voor een rustige akoestiek.


BIJGEBOUWEN
In de tuin staat een houten tuinhuis dat geschikt is voor opslag of klein werk.


PERCEEL & BUITENRUIMTE
De tuin ligt beschut achter een groene haag en vormt een rustige buitenruimte die goed aansluit bij de schaal van het kerkje. Achter de haag loopt een smal pad dat niet tot het perceel van Schoolstraat 8 behoort. Dit pad is een doodlopende openbare steeg. Naast het kerkje ligt een eigen parkeerplaats voor twee auto’s. Een oude sierappelboom geeft de tuin hoogte en schaduw. De terrassen bieden meerdere zitplekken en maken het gebruik van de tuin flexibel door de seizoenen heen.


BESTEMMING & MOGELIJKHEDEN
De bestemming is wonen. De combinatie van atelier en woning maakt dit pand geschikt voor bewoners die wonen en werken willen combineren, zoals kunstenaars, ontwerpers of zelfstandigen. Ook kleinschalige kunst- of praktijkactiviteiten zijn binnen de gemeentelijke kaders goed denkbaar.


DOELGROEPEN
Dit huis spreekt erfgoedliefhebbers aan die een gebouw zoeken met karakter en rust. Het past bij makers, ontwerpers, schrijvers, kunstenaars en zelfstandigen die een atelier aan huis zoeken. Ook watersporters en zeilers voelen zich hier thuis door de nabijheid van de haven. Daarnaast is dit een aantrekkelijke plek voor hen die zich graag bewegen in een historisch stadsbeeld dat doet denken aan de tekeningen van Anton Pieck, en voor internationale kopers die de serene schaal van Hindeloopen waarderen.


BOUWKUNDIGE STAAT
Het bouwkundig onderzoek geeft een positieve indruk, met verouderingspunten die passen bij de leeftijd van het gebouw. Goten, voegwerk en enkele dakdetails vragen op middellange termijn onderhoud. De constructie is stabiel, de vloeren zijn in goede staat en de installaties functioneren naar behoren. De restauratie in 1997–1998 heeft het casco versterkt door het vernieuwen van vloeren, wanden en hemelwaterafvoer. Het geheel vormt een solide basis voor langdurig gebruik, waarbij regulier onderhoud volstaat.


ENERGIELABEL & VERDUURZAMING
Het energielabel is G. Mogelijke verbeteringen richten zich op gevel- en dakisolatie, kierdichting, isolerende beglazing en modernisering van de verwarming. Met zorgvuldig maatwerk is een aanzienlijke verbetering haalbaar.


LOCATIE & BEREIKBAARHEID
Hindeloopen ligt aan het IJsselmeer in Súdwest-Fryslân en behoort tot de beroemde Elf Steden. De binnenstad is compact en rijk aan cultuurhistorie. De haven ligt op enkele minuten lopen en vormt een belangrijk centrum voor watersport.

Amsterdam en Groningen liggen op circa anderhalf uur rijden, Zwolle op ongeveer een uur en Leeuwarden op drie kwartier. Via het NS-station Hindeloopen zijn omliggende steden zoals Sneek, Workum en Stavoren goed bereikbaar.


TIEN REDENEN OM DIT OBJECT TE OVERWEGEN

1. Wonen in een voormalig kerkje uit 1680.
2. Beschermd stadsgezicht in een historische binnenstad.
3. Atelier van royale maat in het voormalige schip.
4. Woonkamer onder een tongewelf.
5. Heldere ruimtelijke structuur met entresol.
6. Beschutte tuin met appelboom.
7. Twee eigen parkeerplaatsen.
8. Degelijke bouwkundige staat volgens onderzoek.
9. Kans op zorgvuldige verduurzaming binnen historische kaders.
10. Ligging nabij haven en IJsselmeer, met brede regionale bereikbaarheid.


KORTOM
De Kleine Vermaning is een rustig en karaktervol huis waarin geschiedenis, licht en dagelijkse bruikbaarheid op natuurlijke wijze samenkomen. De architectuur van het voormalige kerkje geeft het wonen een kalme basis en laat ruimte voor interpretatie. Dit is een plek voor wie bewust kiest voor bouwkunst, historie en een heldere ruimtelijke structuur.


WAAROM REDRES DIT OBJECT VERKOOPT
Redres begeleidt de verkoop van gebouwen met culturele, architectonische en historische waarde. De Kleine Vermaning past precies in dat werkveld door haar gelaagde geschiedenis, zorgvuldige verbouwingen en betekenisvolle plek in Hindeloopen.


INTERESSE & BEZICHTIGING
Interesse in dit prachtige kerkje? Neem contact op met Redres voor informatie of een bezichtiging.

Kenmerken

Overdracht

Vraagprijs
€ 750.000 k.k.
Status
Beschikbaar
Oplevering
In overleg
Adres
Schoolstraat 8
Postcode
8713 KN
Plaats
Hindeloopen

Bouw

Soort woonhuis
Herenhuis, Vrijstaande woning
Soort bouw
Bestaande bouw
Bouwjaar
1680
Onderhoud binnen
Goed
Onderhoud buiten
Goed

Oppervlakten en inhoud

Woonoppervlakte
ca. 167m²
Perceeloppervlakte
ca. 242m²
Oppervlakte woonkamer
ca. 38m²
Inhoud
ca. 620m³

Indeling

Aantal kamers
4
Aantal slaapkamers
2
Aantal badkamers
1
Aantal verdiepingen
2

Energie

Energielabel
G
Warm water
C.V.-ketel
Verwarming
C.V.-ketel
Ketel
Remeha (2015, Combi-ketel, Eigendom)

Buitenruimte

Ligging
Aan rustige weg, In centrum, Landelijk gelegen
Tuin
Voortuin, Zijtuin
Zijtuin
Zuidwest, 102m², 1452×700cm
Schuur
Vrijstaand hout

Ligging & Locatie

[ { "lat": 52.9427364, "lng": 5.4012195, "heading": 0, "pitch": 0 } ]
Bekijk kaart

Plattegronden

Schoolstraat 8, Hindeloopen plattegrond-0
Schoolstraat 8, Hindeloopen plattegrond-1

Contact

Benieuwd wat wij voor u kunnen betekenen? Wij helpen u graag

Fijn dat je contact hebt opgenomen!

We zorgen ervoor dat je spoedig een reactie van ons ontvangt op:

Sorry, we kunnen helaas niet met zekerheid vaststellen of je een mens of een geautomatiseerde bot/spammer bent. Hierdoor kunnen we het formulier dat je hebt ingevuld niet verzenden. Probeer het opnieuw of neem direct contact op met de makelaar via e-mail.

Er is iets mis gegaan met het versturen van het formulier.
Controleer of u alle velden (goed) heeft ingevoerd en probeer het nog een keer.

Persoonlijke gegevens

recaptcha
reCAPTCHA
PrivacyTerms