Omschrijving

DUTCH MOUNTAIN "A SUSTAINABLE WORK OF ART TO LIVE IN"

Onder de rook van Amsterdam, aan de rand van de gemeente Huizen en in het Goois Natuurreservaat, ligt één van de meest unieke huizen van het land, verscholen in het bos.


Het huis is wereldberoemd


De mondiale Franse zender TV5 maakte er een documentaire over en ook BBC TWO maakte uitgebreid opnames voor hun serie The World’s Most Extraordinary Homes, die onlangs ook op Netflix is verschenen. In de tientallen internationale perspublicaties van de afgelopen jaren is Dutch Mountain – zoals het huis wordt genoemd – geroemd om de bijzondere architectonische kwaliteit, maar ook om de grapjes die her en der in het huis te ontdekken zijn. Het huis ligt letterlijk ingebed in de natuur, want het groen loopt aan de noordzijde over het huis heen. De heuvel met het half ondergrondse huis wordt in Huizen Mol’s Hoop genoemd. Een verwijzing naar de achternaam van de huidige eigenaars èn het belang en de hoop op een groenere toekomst.


GESAMTSKUNSTWERK
Sommige architecten creëren gebouwen die in een museum tentoongesteld kunnen worden, maar een compleet huis als Gesamtskunstwerk is uitzonderlijk. Dit unieke duurzame huis is een internationaal groen statement en kunstwerk ineen.

Na 8 jaar heerlijk wonen en bijna 12 jaar na de allereerste plannen vinden de makers en bewoners dat de tijd rijp is voor een volgend project. Nog steeds is dit zelfvoorzienende huis zijn tijd ver vooruit. De eigenaars Sanne Oomen en Lucas Mol, een architecte en een kunsthistoricus, willen weer een stapje verder gaan. “Het huis is af; we willen creëren in plaats van beheren en met een nieuw, circulair gebouwd project anderen wederom inspireren om duurzamer te wonen en te leven.”

Door hun creatieve en humorvolle kijk op bouwen en bouwmaterialen lukt het hen om met zaken die niemand meer wil hebben een state-of-the-art en toch tijdloos huis en interieur te scheppen. Dit alles gemengd met de door de eigenaren verzamelde en vaak zelf vervaardigde kunst & design (vaak van gerecyclede materialen) rechtvaardigt de in de kunstgeschiedenis gebezigde term ‘Gesamtskunstwerk’ voor het huis volledig. En dan ook nog eens van het duurzame soort.

"Het huis is niet aangesloten op het gas. (Daar zou iedereen van af moeten) Ook niet aan het riool, een helofytenfilter zuivert al het water dat het huis verlaat. Wel op het elektriciteitsnet, maar vooral om dat als batterij te gebruiken."


Het huis ligt letterlijk ingebed in de natuur


INDELING
Via de IJzeren Veldweg – een idyllische zandweg - kom je bij Dutch Mountain. Aan de voorzijde verraadt alleen een roestbruin stalen volume de entree. Een grote voordeur met een stuur van een tractor en een getekende pijl naar de bel. Dat is alles. Bij binnenkomst kom je in een andere wereld. Een lichte ruimte, een hal. Achter een ronde deur ligt het gastentoilet. Het verrassingseffect is als je doorloopt enorm. Je ziet een grote vrije ruimte die woonkamer en keuken vormen, met prachtig zicht op de tuin. Grote spanten zorgen voor de overspanning en creëren maximale ruimte. Links van het midden een grote leemkachel die de keuken van de living scheidt. Via een trap links en rechts daal je af naar de woonruimte. Het oppervlak is verdeeld over een begane grond en eerste verdieping (320 m²), een souterrain (220 m²) en een royale inpandige garage (50 m²).

De keuken is een bijzondere belevenis. Niets is wat het lijkt. Een compositie van kastjes uit vervlogen tijden. Een rvs-keuken voorzien van alle gemakken en een groot aanrecht. Blikvanger is de 30 jaar oude Daimler Double Six die in het kader van duurzaamheid als onsterfelijk keukenkastje aan de keukenmuur is geparkeerd. Er is een ludiek afvalscheidingsstation en een leemkachel met pizza-oven. De keuken heeft een grote bijkeuken waar ook de wasmachine en droger staan en waar een extra toilet is. Vanuit hier zijn garage en souterrain bereikbaar.

Via 5 skateboardtraptreden kom je in de iets lagergelegen woonkamer. Hier een grote haard tegen de leemkachel aan, een (te verwijderen) glijbaan voor jonge kinderen en rechts een knusse TV-hoek in een tentachtige constructie, met toegang tot het souterrain dat onder de hele begane grondvloer is gesitueerd. Maar daarover zo meer. De hele achtergevel is transparant. Grote schuifpuien zorgen voor maximale verbinding met buiten en de houten luifel zorgt in de zomer voor de gewenste schaduw, in de winter komt de zon juist ver het huis binnen en zorgt voor licht en warmte. In de hoek het kippenhok dat door middel van een raam een inkijkje geeft in het leven van de krielkippen die dolgraag hier zouden willen blijven wonen.

Vanuit hier heb je een prachtig zicht op de trappartij naar de entree en de slaapkamers op de verdieping. Rechts is een enorme boekenkast. Hierin zit de toegang tot de achtergelegen masterbedroom verborgen. Een unieke kamer die in de berg is gebouwd. Zomer en winter altijd koel en het grote dakraam (uiteraard elektrisch bedienbaar) zorgt voor frisse lucht. Er is een walk-in-closet en daarachter de badkamer. Een prachtige ruimte met bijzondere kranen. Ga maar kijken. De badkamer heeft een heel groot bad, douche, wastafels en toilet. Door een oude wasmachine deur in de wand kan je de was gooien die dan terecht komt in de wasmand in de bijkeuken. Vanuit de badkamer kan je via een deur ook weer teruglopen naar de woonkamer.


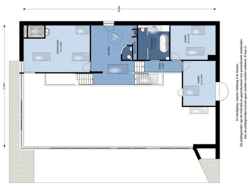
VERDIEPING
De eerste verdieping ligt aan de voorzijde van Dutch Mountain. Deze ruimtes zijn als ‘doosjes’ in de open ruimte geplaatst en kunnen door hun lichte bouwconstructie (geen dragende wanden) naar wens vergroot, - of verkleind worden. Bij de entreehal rechts een atelier of kantoorruimte die uiteraard ook als slaapkamer kan dienen. Links kan je met een paar traptreden omhoog naar twee slaapkamers die hier gesitueerd zijn. Eén van de slaapkamers heeft een groot rond raam waar je in kan zitten. Er is hier ook een tweede badkamer, voorzien van bad, douche, wastafel en toilet. Ook hier kan de was in een wastunnel gegooid worden die uitkomt in de bijkeuken.


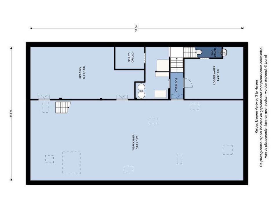
SOUTERRAIN
Het souterrain – feitelijk is het een complete benedenverdieping - is bereikbaar via twee trappen, in de woonkamer en de bijkeuken. Via de woonkamer kom je in een grote – vrij indeelbare ruimte. Weer een andere wereld. Geschikt als kantoor, expositieruimte, chillruimte voor kinderen, bioscoop, fotostudio en zo meer. Er is een grote berging. Daglicht komt er via openingen in het plafond waar grote glazen beloopbare platen in zijn gelegd. Er is zelfs de mogelijkheid om hier een zwembad te maken. Met de bouw is hier constructief reeds rekening mee gehouden. Ook liggen er al aansluitingen voor een sauna/ spa.

Achteraan links is een deur met een hal. Rechts de “Chinese kamer” aangekleed met een behang van een schilderij van Breitner. Deze kamer is in gebruik als logeerkamer (voorzien van douche, wastafel en toilet), maar ook goed te gebruiken als sportruimte.

Links is de installatieruimte met een pelletkachel en alle voorzieningen om het huis zo duurzaam mogelijk te verwarmen en te koelen waarover zo meteen wat meer. En als je rechtdoor loopt kom je met een trap weer op de begane grond in de bijkeuken, voorzien van alle gemakken. Vanuit de bijkeuken ga je rechts weer naar de keuken en links kom je in de grote inpandige garage van circa 50 m2 met plek voor 2 auto’s en voorzien van een elektrische deur.


DUURZAAMHEID
Dutch Mountain is niet zomaar een huis. Idee was om een zeer duurzaam huis te bouwen. Zesendertig zonnecellen voorzien het huis van licht en warme maaltijden (vaak uit eigen moestuin). Het object is zeer goed geïsoleerd en altijd behaaglijk warm dankzij lage temperatuur vloerverwarming en het volautomatisch stoken van pellets (een afvalproduct uit de houtverwerkende industrie). In de kelder bevindt zich een pelletreservoir die één keer per jaar wordt gevuld via een aansluiting in de garage. Het stookseizoen is kort. Een leemkachel met pizzaoven staat in het hart van het huis en helpt mee in de verwarming. Een uitgekiende houten overstek zorgt aan de zuidzijde dat in de winter de laagstaande zon kan meehelpen bij verlichting en verwarming van het huis, maar in de zomer de zon buiten blijft en het huis niet gekoeld hoeft te worden.

Er zijn veel hergebruikte en lokale materialen gebruikt. Het gevel hout is Hollands Lariks hout en is op een steenworp van het huis groot gegroeid.

Het is huis is door de zandlaag nog extra geïsoleerd en een ingenieus CO2 detectiesysteem zorgt dat de ventilatie alleen aanslaat als het nodig is. De toevoer van frisse lucht is natuurlijk, de afzuiging CO2 gestuurd. Een ander duurzaamheidprincipe is dat het huis heel flexibel is: relatief makkelijk kan het aangepast kan worden aan de wensen van toekomstige bewoners of gebruikers.

Alle kamers zijn er als losse ‘doosjes’ ingezet en er kunnen makkelijk ‘doosjes’ toegevoegd worden. De constructie is zo ontworpen dat er zonder problemen 1 of 2 extra kamers in de loft van de huiskamer gehangen kunnen worden. In de kelder is ook nog van alles mogelijk. Het is zo gebouwd dat een inpandig zwembad geen grote ingreep behoeft.


DAIMLER DOUBLE SIX
De aan de muur gespijkerde 30 jaar oude Daimler Double Six, waar de bewoners jaren in rondreden moest ‘sterven’ voor hun groene droom en is inmiddels als een onsterfelijk ‘keukenkastje’ tegen de muur geparkeerd. De luxewagen hangt als een schilderij aan de wand en is een cadeautje voor de nieuwe eigenaren.

Ook de rest van de op maat gemaakte meubelen hebben, net als de inpandige krielkippen, laten weten liever te blijven wonen waar ze wonen. In overleg is alles mogelijk. De vossenfamilie in het bos, de uilen in de tuin, een paartje buizerds, de spechten, de goud- en appelvinken, zeven eekhoorns en twee mollen (geen familie van de verkopers) en elf bijenvolken willen – in overleg – eveneens graag blijven.


BUITEN
De 6.565 m2 grote tuin vloeit aan drie kanten naadloos over in het bos en de heidevelden van het Goois Natuurreservaat. In die tuin kan nog een atelier, kantoor, gastenverblijf, paardenstal, botenhuis of bowlingbaan of ??? van zo’n 125 m2 gecreëerd worden, waar nu een leuke pipowagen staat. Het terrein heeft een achteringang aan de Crailoseweg. Hier bevindt zich nog een schuur van 30 m2.

Ondanks de landelijke ligging zijn winkels, scholen en sport- en medische voorzieningen op loop- en fietsafstand.

KORTOM
Dutch Mountain: Echte liefde is onbetaalbaar.


INTERESSE?
Neem contact met ons op wij informeren u graag!

Kenmerken

Overdracht

Status
Verkocht
Oplevering
In overleg
Adres
IJzeren Veldweg 3
Postcode
1272 PZ
Plaats
Huizen

Bouw

Soort woonhuis
Villa, Vrijstaande woning
Soort bouw
Bestaande bouw
Bouwjaar
2011
Onderhoud binnen
Goed
Onderhoud buiten
Goed

Oppervlakten en inhoud

Woonoppervlakte
ca. 481m²
Perceeloppervlakte
ca. 6.565m²
Overig oppervlakte
ca. 62m²
Inhoud
ca. 2.190m³

Indeling

Aantal kamers
8
Aantal slaapkamers
4
Aantal badkamers
3
Aantal verdiepingen
2
Voorzieningen
Mechanische ventilatie, Buitenzonwering, Zonnecollectoren, Rookkanaal, Schuifpui, Dakraam, Zonnepanelen, Balansventilatie

Energie

Energielabel
A++
Isolatie
Dakisolatie, Muurisolatie, Vloerisolatie, Dubbel glas, Volledig geisoleerd, HR-glas
Warm water
Zonnecollectoren
Verwarming
C.V.-ketel, Vloerverwarming gedeeltelijk, Houtkachel, Pelletkachel
Ketel
(Combi-ketel, Eigendom)

Buitenruimte

Ligging
Aan bosrand, Beschutte ligging, Buiten bebouwde kom, In bosrijke omgeving, Landelijk gelegen
Tuin
Tuin rondom

Garage

Soort garage
Inpandig, Parkeerkelder, Parkeerplaats
Capaciteit
2

Ligging & Locatie

[ { "lat": 52.2873128, "lng": 5.2165648, "heading": 0, "pitch": 0 } ]
Bekijk kaart

Plattegronden

IJzeren Veldweg 3, Huizen plattegrond-0
IJzeren Veldweg 3, Huizen plattegrond-1
IJzeren Veldweg 3, Huizen plattegrond-2

Contact

Benieuwd wat wij voor u kunnen betekenen? Wij helpen u graag

Fijn dat je contact hebt opgenomen!

We zorgen ervoor dat je spoedig een reactie van ons ontvangt op:

Sorry, we kunnen helaas niet met zekerheid vaststellen of je een mens of een geautomatiseerde bot/spammer bent. Hierdoor kunnen we het formulier dat je hebt ingevuld niet verzenden. Probeer het opnieuw of neem direct contact op met de makelaar via e-mail.

Er is iets mis gegaan met het versturen van het formulier.
Controleer of u alle velden (goed) heeft ingevoerd en probeer het nog een keer.

Persoonlijke gegevens

recaptcha
reCAPTCHA
PrivacyTerms