Omschrijving

VILLA DALWIJK – FRIESEWEG 1, OLDEMARKT
Het huis van de dokter, de burgemeester én een wereldberoemde operazangeres

FUNDA-INLEIDING
In het hart van Oldemarkt staat Villa Dalwijk: een voornaam gemeentelijk monument uit circa 1830-1835. Ooit gebouwd als dokterswoning, later burgemeestershuis en rond 1900 het thuis van operazangeres Camille d’Arville. Vandaag is het een royale familievilla van ruim 370 m², zorgvuldig gerestaureerd, verduurzaamd tot energielabel C en omgeven door een groene tuin van ruim 2.000 m². Een huis met verleden, karakter en toekomst.

INLEIDING
Villa Dalwijk behoort tot die karakteristieke huizen die het dorpshart dragen. Aan de Frieseweg, midden in het oude centrum van Oldemarkt, vormt deze witte villa een herkenningspunt dat bijna tweehonderd jaar geschiedenis meedraagt. De symmetrische gevels, de hoge ramen en de ingetogen ornamentiek geven het huis een vanzelfsprekende waardigheid – als een ankerpunt in de tijd.

Rond 1890 klonk hier muziek. De wereldberoemde operazangeres Camille d’Arville, geboren in Den Haag en gevierd in Londen en New York, verbleef enige tijd in Villa Dalwijk. Tussen tournees vond zij hier rust. In de salon met hoge plafonds en de klassieke haard zong zij, repeteerde zij, en gaf het huis iets blijvends: een toon van elegantie, van cultuur en verstilling. Tot op de dag van vandaag lijkt die klank aanwezig – subtiel, maar onmiskenbaar.

De villa werd oorspronkelijk gebouwd voor dorpsdokter Dirk Rutger Hanzon, die hier zijn praktijk aan huis had. Generaties later dienden burgemeesters zich aan. Aan deze deur werd aangeklopt voor advies, genezing of overleg. Villa Dalwijk was altijd een huis met een publieke rol: representatief, gastvrij en in balans tussen wonen en werken. Dat is nog steeds voelbaar.

Oldemarkt ligt in de Kop van Overijssel, tussen Giethoorn, Steenwijk en Blokzijl, op de grens van Friesland en Overijssel. Een dorp met winkels, basisschool, huisarts, horeca en een actief verenigingsleven. De natuur van het Nationaal Park Weerribben-Wieden ligt letterlijk om de hoek. Via de A32 en A6 zijn Heerenveen, Zwolle en Meppel binnen een half uur bereikbaar; Amsterdam ligt op circa anderhalf uur rijden, Utrecht op iets meer dan een uur en Groningen op zeventig minuten. Zo combineert Villa Dalwijk het dorpse met het wereldse: stilte en reikwijdte in één.

ACHTERGROND EN GESCHIEDENIS
Rond 1830 lieten de notabelen van Oldemarkt hun huizen vernieuwen. Villa Dalwijk is daarvan het meest beeldbepalende resultaat. De stijl is neoclassicistisch: helder van vorm, met strakke symmetrie, cordonlijsten en gepleisterde gevels in natuursteenimitatie. De woning was vanaf het begin bedoeld als dokterswoning met praktijkruimte aan huis – vooruitstrevend in zijn combinatie van wonen en werken. Later, toen artsen en burgemeesters elkaar opvolgden als bewoners, bleef het een plek met betekenis. Een huis waar zorg, bestuur en gemeenschap samenkwamen.

ERFGOED EN ARCHITECTUUR
De architectuur van Villa Dalwijk is ingetogen maar verfijnd. De vijf traveeën brede voorgevel, de hoge vensters met kuiven en geprofileerde omlijstingen en het sobere stucwerk geven het huis een rustige, klassieke uitstraling. Binnen overheersen hoogte, licht en symmetrie. In de plafonds van de hal en kamers zijn nog de originele ornamenten aanwezig, de paneeldeuren sluiten op hun oude beslag en de houten trap met slanke balustrade is zorgvuldig behouden. Elk detail vertelt iets over een tijd waarin ambacht, degelijkheid en elegantie vanzelfsprekend samenkwamen.

De verkoop van Villa Dalwijk wordt begeleid door Redres de, erfgoed- en bouwkunstmakelaar van Nederland. Dit huis past bij wat wij doen: bijzondere gebouwen verkopen met kennis van architectuur, geschiedenis en karakter. Villa Dalwijk is daar een goed voorbeeld van – gebouwd met visie, onderhouden met zorg en nu klaar voor een nieuwe toekomst.

DE TOUR

BEGANE GROND
De entree opent naar een ruime ontvangsthal van circa 20 m², met hoge plafonds en een fraaie trappartij direct om de hoek. De plafonds zijn voorzien van een subtiel stucprofiel. Op de vloer in de woon/ eetkamer, serre en het bijgebouw ligt een visgraatpatroon, in de keuken en badkamer liggen tegels en de gang, bibliotheek en eerste verdieping hebben een rechte pvc-vloer. De wanden zijn afgewerkt met klassiek behang dat de historische uitstraling versterkt.

Aan de linkerzijde ligt een kamer van circa 23 m² met twee hoge ramen aan de straatzijde. De verhoogde vloer boven de kelder biedt toegang tot de bibliotheek, die enkele treden hoger is gesitueerd. Een sfeervolle ruimte die zich uitstekend leent als werkkamer, bibliotheek of zitkamer – stil en karaktervol.

Aan de rechterzijde bevindt zich de voormalige salon, nu in gebruik als woonkamer en eetkamer. De woonkamer (circa 30 m²) is de kamer die ooit toebehoorde aan Camille d’Arville. Het ornamentplafond, de hoge ramen, de haardpartij en de symmetrie geven deze ruimte zijn ingetogen grandeur. In de woonkamer zijn bovendien twee nieuwe houtkachels geplaatst, die tijdens de wintermaanden zorgen voor aangename warmte en een sfeervol middelpunt van het huis. Aansluitend ligt de eetkamer van circa 20 m², met daarachter de serre van circa 12 m² met openslaande deuren naar de tuin. De hele begane grond is zorgvuldig vernieuwd, van vloerafwerking tot plafond en installaties; ook de radiatoren zijn vervangen.

KEUKEN
De keuken ligt centraal in huis, tegenover de trap naar de verdieping. Hier bevindt zich ook de toiletruimte en de toegang tot de kelder. De keuken is volledig vernieuwd en uitgevoerd in lavendelblauw, een stijlvolle verwijzing naar klassieke Engelse keukens. Het kookeiland vormt het hart van de ruimte; de werkbladen en eettafel zijn uitgevoerd in hardsteen. De keuken beschikt over moderne apparatuur – oven, inductiekookplaat, koelkast en vaatwasser – zonder afbreuk te doen aan het klassieke karakter. Het is een lichte en uitnodigende ruimte, met plaats voor een lange eettafel en uitzicht op de tuin: hier komt het huis tot leven.

Aangrenzend ligt de bijkeuken met achterentree, aansluitingen voor wasapparatuur en toegang tot de kelder. De kelder (circa 10 m²) heeft stahoogte en een constant koel klimaat – ideaal voor wijn of voorraad.

VOORMALIGE PRAKTIJKRUIMTE
Naast de woning ligt de voormalige praktijkruimte, verbonden via een centrale gang tussen het woonhuis en het bijgebouw. Aan de ene zijde is toegang tot de woning, aan de andere zijde tot het bijgebouw. Aan het einde van de gang bevindt zich een toilet en een kleine studio met een kantoorruimte aan de voorzijde (circa 21 m²), een compacte badkamer met douche, toilet en wastafel, en een woon-slaapkamer met toegang naar het terras aan de achterzijde. Deze ruimte is ideaal als aanleunwoning, gastenverblijf of kantoor aan huis.

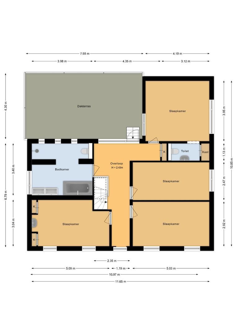
EERSTE VERDIEPING
Via de trap kom je op de eerste verdieping, waar een royale overloop met hoge ramen toegang geeft tot vier slaapkamers, variërend van circa 12 tot 15 m². De kamers aan de voorzijde kijken uit op de Frieseweg en het dorpscentrum, de kamers aan de achterzijde op de tuin. De plafonds zijn hoog, de muren strak en het daglicht zacht. De nieuwe badkamer (circa 15 m²) is modern uitgevoerd en voorzien van een ligbad, inloopdouche, wastafelmeubel en toilet. De slaapkamer aan de achterzijde beschikt over een eigen toilet. De indeling biedt volop mogelijkheden voor logeerkamers, kinderkamers of een werkkamer, zonder in te leveren op ruimtelijkheid.

ZOLDER
De zolderverdieping is bereikbaar via een vlizotrap en strekt zich uit over de volledige lengte van het huis (circa 70 m²). Onder het vernieuwde dak met geïsoleerd beschot en een nokhoogte van 2,74 meter is voldoende ruimte om een atelier, bibliotheek of extra slaapkamer te realiseren. De houten spanten en zichtbare kapconstructie geven de zolder een bijzonder karakter – hier voel je letterlijk de geschiedenis boven je hoofd.

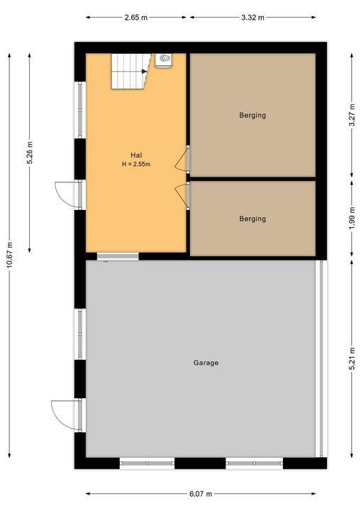
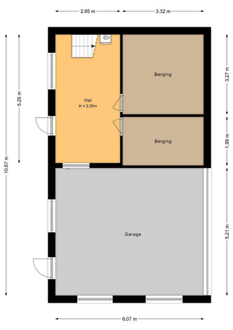
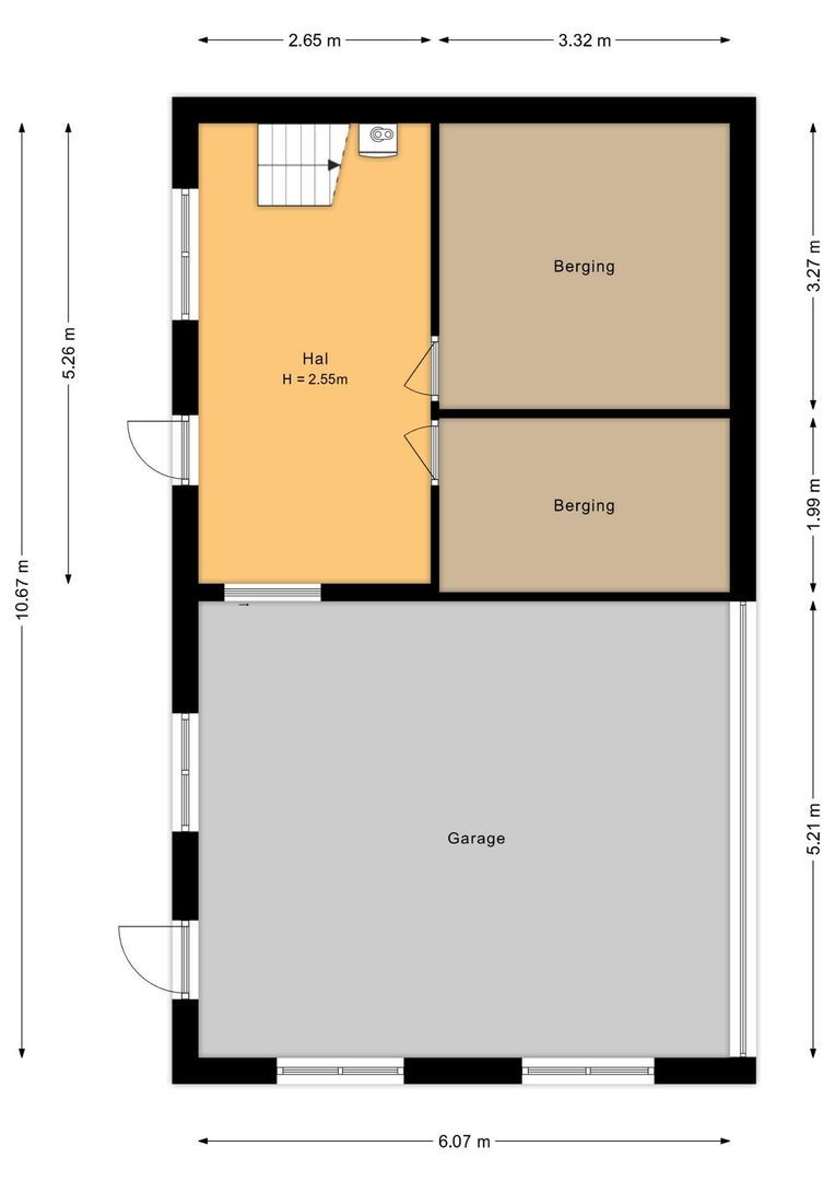
GARAGE
Aan de zijkant van het perceel bevindt zich een royale garage van circa 108 m², verdeeld over begane grond en zolder. Het gebouw omvat een garage, werkplaats en twee grote bergingen. Er is een vaste trap naar de verdieping. Deze ruimte is ideaal voor een verzamelaar of liefhebber van klassieke auto’s, maar biedt ook volop mogelijkheden voor gebruik als kantoor, atelier of praktijk aan huis – of, met een kleine aanpassing, als au pair- of meergeneratiewoning.

BUITEN: PERCEEL EN TUIN
Het perceel van 2.095 m² vormt een groene enclave midden in het dorp. De fraaie voortuin met monumentale bomen en ronde oprit markeert de entree. De tuin loopt aan de rechterzijde om het huis heen en is diep en beschut, met gazons, terrassen, volwassen bomen en borders die privacy bieden. Tussen voor- en achtertuin is recent een hekwerk geplaatst, zodat huisdieren vrij kunnen rondlopen. De oprit biedt ruimte aan meerdere auto’s en geeft toegang tot het bijgebouw.

BOUWKUNDIG EN ONDERHOUD
Villa Dalwijk verkeert in uitstekende staat. In de afgelopen jaren is onder toezicht van de monumentencommissie omvangrijk onderhoud uitgevoerd. Het dak is volledig vernieuwd en geïsoleerd, de gevels zijn hersteld en opnieuw gepleisterd, de schoorsteenkanalen gerestaureerd en voorzien van twee nieuwe houtkachels. Hemelwaterafvoeren en dakgoten zijn vervangen, schilderwerk binnen en buiten uitgevoerd, installaties deels vernieuwd en leidingen vervangen. Zoldervloeren en kozijnen zijn geïsoleerd en hersteld, de tuin opnieuw aangelegd en voorzien van een verbeterde erfafscheiding. Twintig zonnepanelen (totaal 5.950 Wp) zorgen voor duurzame energie. Het resultaat is een monumentaal huis dat voldoet aan hedendaagse eisen, zonder dat de authenticiteit verloren is gegaan.

VERDUURZAMING
Villa Dalwijk beschikt over energielabel C – een keurmerk dat voor een gemeentelijk monument meer dan prima is. Vanaf mei 2026 wordt een energielabel verplicht voor alle monumenten; hier is die stap al gezet. Dak- en muurisolatie, kierdichting, zonnepanelen en efficiënte installaties zorgen voor een aangenaam binnenklimaat en lage energielasten. Een verduurzamingsadvies voor vloerisolatie en een lucht-waterwarmtepomp ligt klaar voor toekomstige eigenaren die het comfort verder willen vergroten en het energielabel willen verbeteren.

BESTEMMING EN MOGELIJKHEDEN
Het pand heeft de bestemming Centrum-1 met dubbelbestemming Waarde – Cultuurhistorie. Naast wonen zijn aan huis gebonden beroepen toegestaan. De indeling maakt het pand geschikt voor combinatiegebruik: wonen en werken, mantelzorg of meergeneratiewonen – precies zoals het in zijn geschiedenis altijd is gebruikt.

DOELGROEPEN
Villa Dalwijk is een huis voor mensen die niet zomaar wonen, maar iets willen voortzetten. Voor een herenstel dat royaal wil leven en gasten ontvangen. Voor een samengesteld gezin dat ruimte zoekt voor samenleven met behoud van privacy. Voor families die mantelzorg of meergeneratiewonen overwegen. Voor professionals die een praktijk aan huis willen vestigen – in de geest van de dorpsdokter. En voor liefhebbers van erfgoed, architectuur en cultuur die waarde hechten aan authenticiteit, sfeer en vakmanschap.

PLAATS EN LIGGING
Oldemarkt ligt tussen Steenwijk, Giethoorn en Blokzijl, op de grens van Overijssel en Friesland. Het dorp biedt winkels, horeca, basisschool, huisarts, sportclubs en een levendig dorpsleven. De ligging aan Nationaal Park Weerribben-Wieden maakt het aantrekkelijk voor wie natuur en rust zoekt. De A32 en A6 verbinden Oldemarkt met Heerenveen, Meppel, Zwolle en Amsterdam. Het station van Steenwijk ligt op tien kilometer afstand. Villa Dalwijk ligt centraal in het noorden van Nederland – goed bereikbaar, maar nooit gehaast.

10 REDENEN OM DIT OBJECT TE KOPEN
1. Gemeentelijk monument met rijke historie en karakter.
2. Circa 370 m² woonoppervlak en 2.095 m² perceel in het dorpshart.
3. Historisch huis met energielabel C.
4. Dak, gevels en installaties volledig vernieuwd.
5. Authentieke ornamenten, trap, deuren en schouwen behouden.
6. Bijgebouw met garage, werkruimte en zolder.
7. Grote tuin met volwassen bomen en volledige privacy.
8. Op loopafstand van winkels, school en voorzieningen.
9. Nabij Giethoorn, Blokzijl en Nationaal Park Weerribben-Wieden.
10. Een huis waarin geschiedenis, comfort en cultuur samenkomen.

DETAILS EN CIJFERS
Gebruiksoppervlakte wonen: 297 m²
Overige inpandige ruimte: 58 m²
Gebouwgebonden buitenruimte: 33 m²
Externe bergruimte: 108 m²
Totale inhoud: circa 1.397 m³
Perceelgrootte: 2.095 m²
Bouwjaar: 1830-1835
Monumentstatus: Gemeentelijk monument
Energielabel: C

KORTOM
Ooit het huis van de dorpsdokter, de burgemeester en zelfs een wereldberoemde operazangeres. Vandaag een warm en uitnodigend familiehuis waarin historie en comfort elkaar moeiteloos vinden. Villa Dalwijk is een huis dat iets met je doet – een plek waar muziek, zorg en bestuur hun sporen hebben achtergelaten en waar nieuwe verhalen mogen ontstaan.

Deze villa wordt verkocht door Redres de Bouwkunstmakelaar, de erfgoed- en monumentenmakelaar van Nederland. Redres begeleidt de verkoop van erfgoed, bouwkunst en uitgesproken woonhuizen – en Villa Dalwijk past precies in die traditie. In het hart van Oldemarkt, tussen stad en natuur, biedt deze villa iets wat maar weinig huizen bieden: betekenis, ruimte en rust. En wie goed luistert, hoort misschien nog een vleugje muziek.

Interesse? We vertellen graag meer over Villa Dalwijk en de mogelijkheden die dit bijzondere huis biedt.

Kenmerken

Overdracht

Vraagprijs
€ 975.000 k.k.
Status
Beschikbaar
Oplevering
In overleg
Adres
Frieseweg 1
Postcode
8375 AH
Plaats
Oldemarkt

Bouw

Soort woonhuis
Herenhuis, Vrijstaande woning
Soort bouw
Bestaande bouw
Bouwjaar
1831
Onderhoud binnen
Goed
Onderhoud buiten
Goed
Bijzonderheden
Monumentaal pand, Monument, Dubbele bewoning mogelijk, Erfgoed

Oppervlakten en inhoud

Woonoppervlakte
ca. 297m²
Perceeloppervlakte
ca. 2.095m²
Overig oppervlakte
ca. 58m²
Inhoud
ca. 1.397m³

Indeling

Aantal kamers
10
Aantal slaapkamers
5
Aantal badkamers
2
Aantal verdiepingen
3
Voorzieningen
Mechanische ventilatie, Rookkanaal, Domotica, Zonnepanelen

Energie

Energielabel
C
Isolatie
Dakisolatie, Muurisolatie, Vloerisolatie, Dubbel glas
Warm water
C.V.-ketel
Verwarming
C.V.-ketel
Ketel
Remeha (2021, Combi-ketel, Eigendom)

Buitenruimte

Ligging
Aan rustige weg, In centrum, Beschutte ligging
Tuin
Tuin rondom
Schuur
Vrijstaand steen

Garage

Soort garage
Vrijstaand steen
Capaciteit
2

Ligging & Locatie

[ { "address": "Frieseweg 1", "zipCode": "8375 AH", "city": "Oldemarkt", "lat": 52.8198467, "lng": 5.9762513, "heading": 0, "pitch": 0 } ]
Bekijk kaart

Plattegronden

Frieseweg 1, Oldemarkt plattegrond-0
Frieseweg 1, Oldemarkt plattegrond-1
Frieseweg 1, Oldemarkt plattegrond-2
Frieseweg 1, Oldemarkt plattegrond-3
Frieseweg 1, Oldemarkt plattegrond-4
Frieseweg 1, Oldemarkt plattegrond-5
Frieseweg 1, Oldemarkt plattegrond-6

Contact

Benieuwd wat wij voor u kunnen betekenen? Wij helpen u graag

Fijn dat je contact hebt opgenomen!

We zorgen ervoor dat je spoedig een reactie van ons ontvangt op:

Sorry, we kunnen helaas niet met zekerheid vaststellen of je een mens of een geautomatiseerde bot/spammer bent. Hierdoor kunnen we het formulier dat je hebt ingevuld niet verzenden. Probeer het opnieuw of neem direct contact op met de makelaar via e-mail.

Er is iets mis gegaan met het versturen van het formulier.
Controleer of u alle velden (goed) heeft ingevoerd en probeer het nog een keer.

Persoonlijke gegevens

recaptcha
reCAPTCHA
PrivacyTerms