Omschrijving

18 TORENAPPARTEMENT

Dit unieke appartement van 202 m², gelegen in de aloude verdedigingstoren van Kasteel Nijswiller, biedt een bijzondere woonervaring vol historische grandeur. De vier ‘gestapelde’ ruimtes, bekroond door de dubbele torenspits met het familiewapen van Baron van Eynatten – twee buffelhorens en zes rode merletten – ademen historie en verfijning.

Een adellijke woonervaring
Het torenappartement biedt een uitzonderlijk uitzicht. Vanuit de hoge vensters kijk je uit op de majestueuze platanen bij de kasteelpoort, het serene kasteelpark en de historische productieboerderij, ooit de levensader van het kasteel. Met een eigen traptoren en een fascinerende historische zolder brengt deze woning de rijke historie van het kasteel tot leven.

Royale bel-etage
De toegang tot het appartement loopt via de gelijkvloerse centrale hal of het souterrain. De bel-etage, met een plafondhoogte van vier meter, biedt een indrukwekkende woonkeuken. Hoge vensters aan drie zijden zorgen voor licht en een prachtig zicht. De brede zwartmarmeren schouw, met aansluiting voor een royale gashaard, vormt het hart van de ruimte. De vloer, voorbereid met een egale epoxylaag, kan naar wens worden afgewerkt met strak parket. Vloerverwarming biedt comfort, zowel in de hal als in de keuken.

Comfort op de eerste verdieping
De eerste verdieping herbergt een lichte slaapkamer met hoge ramen en plafondornamenten. Een marmeren schouw met gashaardoptie en een ruime badkamer met douche en ligbad maken deze verdieping compleet. De vloerverwarming zorgt voor een aangename sfeer.

Tweede verdieping: een panoramische ervaring
De tweede slaapkamer, met ramen aan alle vier zijden, biedt een prachtig uitzicht op het kasteelpark en het omliggende heuvellandschap. Het plafond, afgewerkt met een ingenieuze balkenstructuur en naadloos stucwerk, benadrukt de historische ambiance. Ook deze verdieping heeft een eigen royale badkamer met douche en ligbad.

Het geheim van de toren
De traptoren voert nog hoger, naar een ruimte die de kasteelzolder wordt genoemd, al doet dat woord geen recht aan haar charme. Hier ervaar je de indrukwekkende balkenstructuur van de torenspits, een ruimte met een hoogte van zeven meter. Deze verdieping, zonder modern comfort, is een plek voor contemplatie, creativiteit of simpelweg bewondering van het middeleeuwse vakmanschap.

Hoogtepunten van het torenappartement:

- Woonoppervlakte: 202 m²
- Vier historische verdiepingen en een dubbele torenspits
- Historische vensters met “diefijzers” en omlijste schietgaten
- Zwartmarmeren schouwen met gashaardaansluitingen
- Twee slaapkamers met eigen badkamers
- Spectaculair uitzicht op het kasteelpark en het heuvellandschap
- Originele balkenstructuren en ornamentenplafonds
- Historische zolder als unieke ruimte voor contemplatie

Kenmerken

Overdracht

Vraagprijs
€ 895.000 k.k.
Status
Beschikbaar
Oplevering
In overleg
Adres
Kolmonderstraat 18
Postcode
6286 CE
Plaats
Wittem

Bouw

Soort appartement
Beneden + bovenwoning
Soort bouw
Nieuwbouw
Bouwjaar
1200
Onderhoud binnen
Uitstekend
Onderhoud buiten
Uitstekend
Bijzonderheden
Monumentaal pand

Oppervlakten en inhoud

Woonoppervlakte
ca. 202m²
Perceeloppervlakte
ca. 1,0ha
Oppervlakte woonkamer
ca. 44m²
Inhoud
ca. 606m³

Indeling

Aantal kamers
4
Aantal slaapkamers
1
Aantal badkamers
1
Aantal verdiepingen
4

Buitenruimte

Ligging
Vrij uitzicht, Beschutte ligging, Buiten bebouwde kom, Landelijk gelegen
Tuin
Tuin rondom

Ligging & Locatie

[ { "lat": 50.8065411, "lng": 5.9599226, "heading": 0, "pitch": 0 } ]
Bekijk kaart

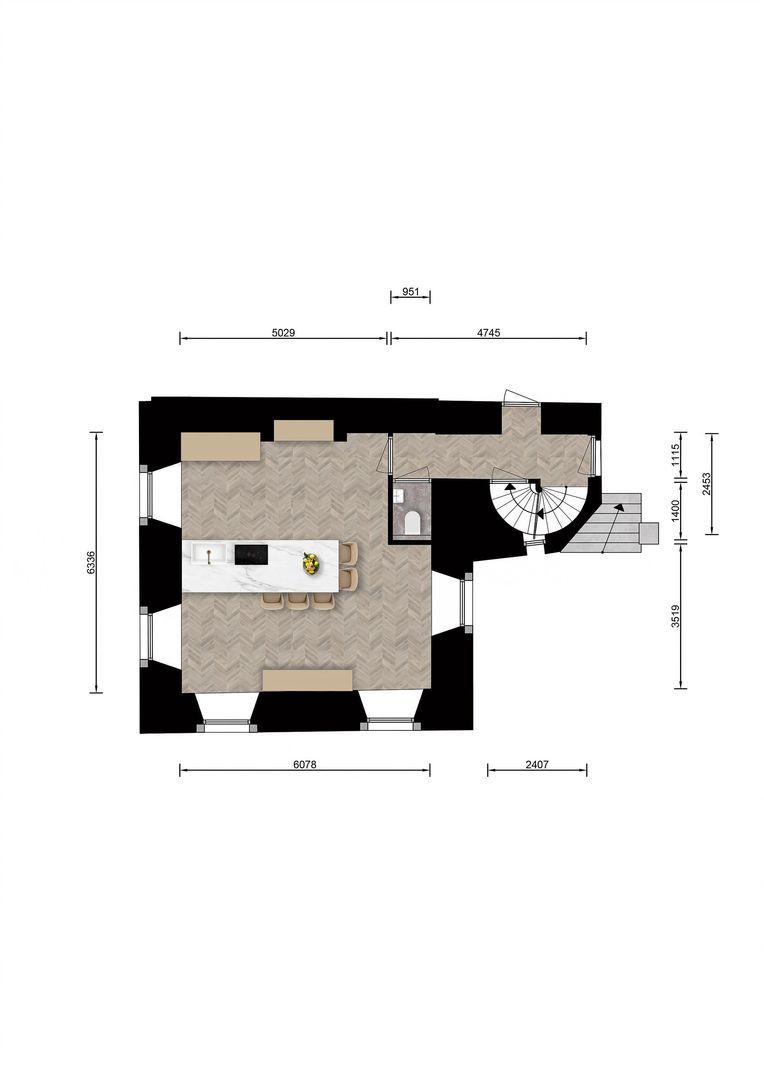
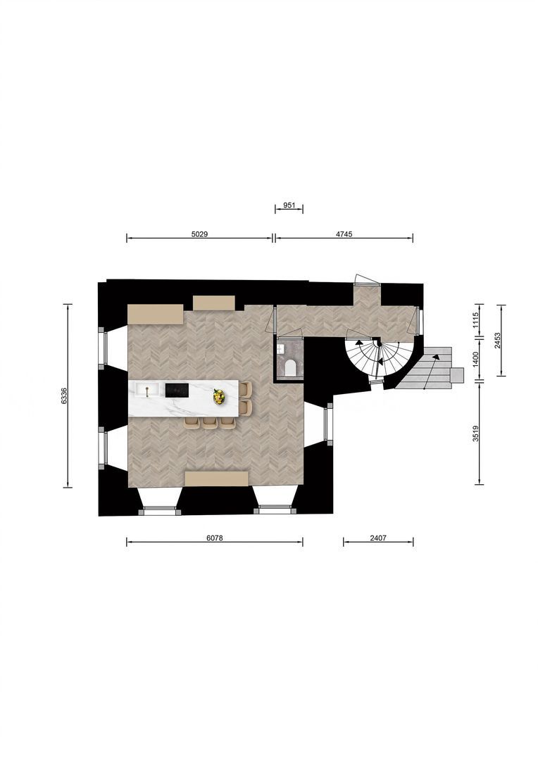
Plattegronden

Kolmonderstraat 18, Wittem plattegrond-0
Kolmonderstraat 18, Wittem plattegrond-1
Kolmonderstraat 18, Wittem plattegrond-2
Kolmonderstraat 18, Wittem plattegrond-3

Contact

Benieuwd wat wij voor u kunnen betekenen? Wij helpen u graag

Fijn dat je contact hebt opgenomen!

We zorgen ervoor dat je spoedig een reactie van ons ontvangt op:

Sorry, we kunnen helaas niet met zekerheid vaststellen of je een mens of een geautomatiseerde bot/spammer bent. Hierdoor kunnen we het formulier dat je hebt ingevuld niet verzenden. Probeer het opnieuw of neem direct contact op met de makelaar via e-mail.

Er is iets mis gegaan met het versturen van het formulier.
Controleer of u alle velden (goed) heeft ingevoerd en probeer het nog een keer.

Persoonlijke gegevens

recaptcha
reCAPTCHA
PrivacyTerms