Omschrijving

BROUWERSHOF MAASBOMMEL

Rijksmonumentale T-boerderij met bedrijfsbestemming en toekomstwaarde aan de Maas

Aan de binnendijk van Maasbommel, in het rivierenland van Gelderland, ligt Brouwershof. Een rijksmonumentale T-boerderij uit 1870 met een geschiedenis als brouwerij, een karakter als boerderij en een toekomst die ruimte biedt voor wonen, werken en buitenleven. Hier, op een erf van ruim 1,3 hectare, komen historie, ambacht en eigentijdse duurzaamheid samen. De huidige bestemming is ‘Bedrijf’, maar de schaal, structuur en sfeer maken Brouwershof tot een vanzelfsprekend woon-werkensemble, met perspectief op een volwaardige woonbestemming in het hart van West Maas en Waal.

INLEIDING
Brouwershof Maasbommel is meer dan een gebouw. Het is een plek waar tijd voelbaar blijft, waar ambacht en eenvoud elkaar vinden in baksteen, hout en licht. Achter de symmetrische gevel met vijf vensterassen en oudhollandse pannen ontvouwt zich een zorgvuldig bewaard geheel dat zijn betekenis niet schreeuwt, maar toont in proportie en rust. Sinds 2020 is het erf stap voor stap hersteld, verduurzaamd en verfijnd – met behoud van wat waarde had en toevoeging van wat de toekomst vraagt.

De oorsprong van Brouwershof ligt ruim voor 1870, het jaar waarin Ivo van Koolwijk het woonhuis bouwde waarmee het de karakteristieke T-vorm kreeg: het woonhuis dwars op de dijk, het achterhuis als werkdeel in het verlengde van het erf. De initialen boven de kelderdeur herinneren aan het bouwjaar. Ivo van Koolwijk overleed in 1878. Brouwershof werd verkocht en kreeg enige jaren daarna zijn agrarische bestemming. In 2001 werd Brouwershof aangewezen als rijksmonument, als representant van negentiende-eeuwse bouwkunst op de oeverwal van de Maas – een typerende combinatie van degelijkheid, maatvoering en streekgebonden detaillering.

DE TOUR
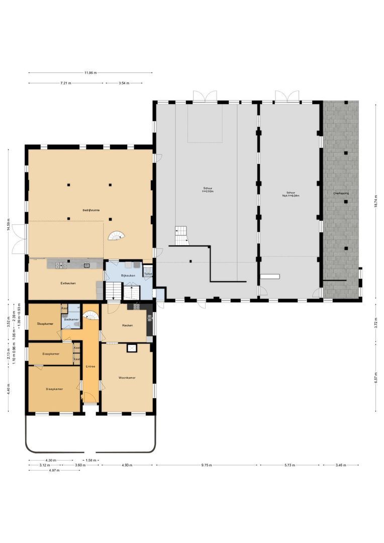
Wie via de dijkzijde binnenkomt, ervaart direct de gelaagdheid van het gebouw. De entreehal met authentieke hardstenen vloer, lambrisering en grenen paneeldeuren vormt de centrale as van het voorhuis. Het huidige gebruik is zodanig ingericht dat het voorhuis ruimte biedt aan twee huishoudens. Aan de linkerzijde ligt een woonkamer met daarachter een kleine kamer en, in het verlengde daarvan, een gastenkamer met eigen badkamer voorzien van toilet, douche en wastafel. Aan de rechterzijde van de gang bevindt zich een royale woonkamer met aansluitend de gemeenschappelijke keuken.

Alle kamers hebben hoge plafonds en brede vloerdelen. In beide woonkamers staat een schouw. De ramen met zesruitsindeling en glas-in-lood bovenlichten vangen het licht van de rivier aan de voorzijde. De kamers aan de dijkzijde zijn eenvoudig maar sfeervol, met vrij uitzicht over de uiterwaarden van de Maas.

Deze indeling maakt gelijkvloers wonen mogelijk zonder afbreuk te doen aan de ruimtelijkheid van het geheel. De keuken aan de rechterzijde vormt de dagelijkse werkkeuken van het huis. Vanuit het raam is zicht op de moestuin. Aangrenzend ligt, een halve verdieping lager de bijkeuken met toilet, en toegang tot de zijtuin. Ook van hieruit leidt een trap naar een van de kelders, toegang tot de grote keuken en het achterhuis.

KELDERS
Onder het voorhuis liggen twee gewelfde kelders met een gezamenlijke oppervlakte van circa 117 m². Ze zijn koel, droog en uitstekend geschikt voor opslag, wijn of installaties. Hier bevindt zich de apparatuur voor verwarming, de zonneboiler en de wasruimte. De bakstenen gewelven zijn behouden gebleven en verwijzen nog altijd naar het brouwerijverleden van het pand. De fundering verkeert in stabiele staat. De keldermuren zijn droog en voorzien van natuurlijke ventilatie.

ACHTERHUIS
Het achterhuis, waar ooit de brouwerij en later de deel was, heeft een oppervlakte van circa 155 m² op de begane grond en 155 m2 op de verdieping welke laatste via een spiltrap bereikbaar is. Ter plaatse van de vide is de volledige ruimte te ervaren als één grote open ruimte met hoge kap met zichtbare spanten. De geïsoleerde betonvloer op de begane grond is voorzien van vloerverwarming. Stalramen op de begane grond en de kleine ramen rondom van de oude moutzolder op de verdieping brengen ritme en licht in de ruimte. Twee dubbele deuren openen naar tuin en erf, waardoor binnen en buiten op natuurlijke wijze met elkaar verbonden zijn.

De deel wordt thans gebruikt als multifunctionele ruimte voor werk, bijeenkomsten, exposities en ontvangsten. Het houten plafond en de open kapconstructie geven karakter, terwijl voorzieningen als een pantry, infraroodverwarming en een houtkachel zorgen voor comfort en gebruiksgemak. De inrichting van de grote keuken is ambachtelijk uitgevoerd, met een massief iepen werkblad van 90cm breed, onderkasten aan 2 zijden, apparatuur van Gaggenau, inductie kookplaat, twee ovens waarvan ??n stoomoven, Quooker en koelkast met dubbele koelzones van Liebherr.

VERDIEPING EN VIDE
Een gietijzeren spiltrap verbindt de hal aan de achterzijde met de verdieping. De overloop met vide laat de kapconstructie volledig ervaren. Op deze verdieping liggen rondom de grote overloop vier ruime kamers onder de geïsoleerde kap. De zichtbare spanten en gordingen tonen het vakmanschap van de oorspronkelijke bouw. Twee badkamers – één met ligbad en één met douche – completeren de verdieping. Elke kamer heeft een eigen oriëntatie: aan de dijkzijde uitzicht over de rivier, aan de erfzijde zicht op tuin en erf. Via de overloop is tevens de verdieping boven het achterhuis bereikbaar.

BIJGEBOUWEN EN B&B
De schuren naast het achterhuis zijn degelijk gebouwd en samen goed voor circa 252 m². De eerste schuur doet dienst als werkplaats met vliering; de tweede als garage. Beide zijn in 2024 buitenom geschilderd en in 2025 behandeld tegen houtworm (met tien jaar garantie).
Aan het einde van het erf staat de grote kapschuur. In 2023 en 2024 zijn hier aansluitingen aangelegd voor water, elektra, riolering en wifi. De kapschuur is voorbereid op B&B-gebruik, met pipowagens en een toiletwagen met twee badkamers. De zonnepanelen (26 op de kapschuur, 10 op de eerste schuur) leveren de energie voor het geheel.

BUITENRUIMTE EN LANDSCHAP
Het erf van 13.060 m² vormt een samenhangend landschap van tuin, weiland en moestuin. In 2021 en 2022 zijn achttien fruitbomen en twee walnoten geplant, met subsidie van Gelders Landschap. Rond de moestuin is een haag aangelegd, er kwamen twee vogelbosjes en in 2025 een Tiny Forest met vijver, mede gefinancierd door de provincie Gelderland.
De moestuin telt zestien verhoogde bedden, vergroot in 2023 en 2024. Er is een kas (2022) met watervoorziening vanuit het erf. Rondom het terrein zijn oude wilgen en leilindes behouden en jaarlijks gesnoeid. De maasheggen zijn traditioneel hersteld.

BESTEMMINGSPLAN EN MOGELIJKHEDEN
Brouwershof valt binnen het bestemmingsplan Buitengebied Berghuizen 40 van de gemeente West Maas en Waal. De functie is gewijzigd van agrarisch naar ‘Bedrijf’ met bedrijfswoning, passend binnen milieucategorie 1 en 2 volgens de bijgevoegde bedrijfsactiviteitenlijst. De gemeente verleende deze wijziging specifiek voor een bedrijf gericht op overleg, rust, bezinning en creatieve activiteiten, met kleinschalige overnachting (maximaal tien personen).

Binnen deze bestemming zijn ambachtelijke, kunstzinnige en dienstverlenende activiteiten toegestaan, mits kleinschalig en zonder buitenopslag. De bebouwing van de rijksmonumentale T-boerderij blijft behouden. Buitenruimte mag worden gebruikt voor extensieve recreatie en lichte horeca gerelateerd aan het gebruik.
De gemeente West Maas en Waal stimuleert in haar Omgevingsvisie het behoud en hergebruik van karakteristieke bebouwing in het buitengebied. Functieverandering naar wonen is mogelijk wanneer de cultuurhistorische waarde behouden blijft. Deze beleidslijn maakt de wijziging van de bedrijfsbestemming naar wonen concreet uitvoerbaar, in lijn met provinciaal beleid voor het rivierenland.

DOELGROEPEN
Brouwershof spreekt bewoners en ondernemers aan die ruimte, rust en erfgoed weten te waarderen. Het erf leent zich voor gezinnen en meergeneratiewonen, maar ook voor bewoners die wonen en werken willen combineren. De ruime deel biedt een natuurlijke plek voor atelier, praktijk of kleinschalige ontvangsten. Door de structuur van het voorhuis zijn ook collectieve woonvormen goed denkbaar. Daarnaast past het erf bij kopers die een kleinschalige B&B, creatieve activiteiten of ambachtelijke werkruimte zoeken. Brouwershof is geschikt voor wie bewust kiest voor kwaliteit, landschap en een monument met toekomstwaarde.

BOUWKUNDIG EN VERDUURZAMING
Volgens het inspectierapport van Monumentenwacht Gelderland (2025) verkeert Brouwershof in goede staat. De constructie is solide, de gevels en kozijnen zijn hersteld, het dak is wind- en waterdicht. Aanbevelingen betreffen regulier onderhoud van voegwerk, schilderwerk en periodieke inspectie van spanten en goten. Sinds 2021 wordt de boerderij tweejaarlijks gecontroleerd.

De verduurzaming is integraal uitgevoerd volgens een plan van Thuisbaas (2023). Brouwershof is volledig gasloos, met twee Panasonic Aquarea-warmtepompen van 16 kW, gekoppeld aan een zonneboiler en 36 zonnepanelen. Het elektrische systeem is verzwaard naar 3x25 ampère. In 2023 zijn achterzetramen geplaatst bij de glas-in-loodramen in alle verblijfsruimtes beneden. Kozijnen, plafonds en vloeren zijn geïsoleerd met behoud van historische details. Buitenverlichting, goten en schilderwerk zijn vernieuwd, en het erf beschikt over een Zappi-laadpaal.

Tussen 2021 en 2025 is het gehele ensemble grondig hersteld: schilderwerk, houtwormbehandeling, nieuwe goten, erfherstel, kasbouw, aanleg van Tiny Forest en landschappelijke afronding. Daarmee verkeert Brouwershof vandaag in instapklare staat, zonder achterstallig onderhoud.

LOCATIE EN BEREIKBAARHEID
Brouwershof ligt aan de binnendijk van Maasbommel, gemeente West Maas en Waal, provincie Gelderland. De ligging aan de rivier en nabij natuurgebied De Gouden Ham zorgt voor rust en uitzicht. Nijmegen en ’s-Hertogenbosch liggen beide op circa dertig minuten rijden via de A50 of A15.

TIEN REDENEN OM BROUWERSHOF MAASBOMMEL TE KOPEN
1. Een rijksmonumentale T-boerderij uit 1870, met historie als brouwerij en woonboerderij.
2. Een erf van ruim 1,3 hectare aan de binnendijk van Maasbommel, met weids uitzicht over de uiterwaarden van de Maas.
3. Een solide gebouw met behoud van oorspronkelijke structuur en authentieke materialen.
4. Een volledig gasloos monument, duurzaam hersteld en toekomstgericht. Energie label A+
5. Een ruime deel met vide, vloerverwarming, pantry en woonkeuken – geschikt voor werk, bijeenkomsten, exposities en ontvangst.
6. Een erf met kas, moestuin, fruitbomen en Tiny Forest, zorgvuldig aangelegd en onderhouden.
7. Een bedrijfsbestemming (categorie 1–2) met concrete wijzigingsbevoegdheid naar ‘Wonen’.
8. Een uitstekende bouwkundige staat volgens Monumentenwacht 2025.
9. Een erfensemble dat rust, kwaliteit en gebruiksmogelijkheden verenigt.
10. Een plek die het verhaal van het rivierenland in zich draagt – tussen water, erfgoed en toekomst.

WAAROM REDRES DIT OBJECT VERKOOPT
Brouwershof past bij de gebouwen waarmee Redres zich verbonden voelt: erfgoed dat inhoud, architectuur en toekomst in zich draagt. De boerderij laat zien hoe verleden en gebruik elkaar kunnen versterken, zonder concessies aan authenticiteit of comfort. Redres begeleidt de verkoop met aandacht voor betekenis en detail – van bouwkundige kwaliteit tot beleving van plek en licht. Niet de functie, maar de essentie staat centraal: een gebouw dat zijn waarde ontleent aan tijd, vakmanschap en visie.

INTERESSE
Bij Redres leeft het idee dat een huis als Brouwershof niet alleen een plek is om te wonen of te werken, maar ook een stukje geschiedenis om door te geven. Brouwershof Maasbommel is een karakteristieke T-boerderij in het rivierenland van Gelderland – een rijksmonument waar wonen, werken en erfgoed samenkomen in West Maas en Waal. Wie hier rondloopt, ervaart de rust van het landschap en de kracht van de bouwkunst. Brouwershof is niet alleen een huis, maar een manier van leven in balans met tijd en plaats. Geïnteresseerd in dit erf of de mogelijkheden voor toekomstig gebruik? Neem contact op met Redres voor informatie of een bezichtiging.

Kenmerken

Overdracht

Vraagprijs
€ 1.350.000 k.k.
Status
Beschikbaar
Oplevering
In overleg
Adres
Berghuizen 40
Postcode
6627 KB
Plaats
Maasbommel

Bouw

Soort woonhuis
Woonboerderij, Vrijstaande woning, Dijkwoning
Soort bouw
Bestaande bouw
Bouwjaar
1870
Onderhoud binnen
Goed
Onderhoud buiten
Goed
Bijzonderheden
Monument, Dubbele bewoning mogelijk

Oppervlakten en inhoud

Woonoppervlakte
ca. 363m²
Perceeloppervlakte
ca. 1,3ha
Overig oppervlakte
ca. 272m²
Inhoud
ca. 2.295m³

Indeling

Aantal kamers
8
Aantal slaapkamers
4
Aantal badkamers
3
Aantal verdiepingen
2
Voorzieningen
Zonnecollectoren, Rookkanaal, Glasvezel kabel, Zonnepanelen

Energie

Energielabel
A+
Isolatie
Vloerisolatie, Gedeeltelijk dubbel glas, Voorzetramen
Verwarming
Vloerverwarming gedeeltelijk, Warmtepomp, Houtkachel

Buitenruimte

Ligging
Aan rustige weg, Vrij uitzicht, Buiten bebouwde kom, Landelijk gelegen
Tuin
Tuin rondom
Schuur
Aangebouwd steen
Faciliteiten schuur
Voorzien van elektra, Voorzien van water

Garage

Soort garage
Aangebouwd steen
Capaciteit
3

Ligging & Locatie

[ { "lat": 51.8231323, "lng": 5.5176453, "heading": 0, "pitch": 0 } ]
Bekijk kaart

Omschrijving

Rijksmonumentale T-boerderij met erf, bijgebouwen en B&B in het Land van Maas en Waal. In het Land van Maas en Waal, bij Maasbommel, ligt een rijksmonumentale T-boerderij die met zorg is gerestaureerd en toekomstbestendig gemaakt. Een plek met geschiedenis, waar de rust van het rivierenlandschap samenvalt met de kracht van ambachtelijke bouwkunst. Het erf, ruim een hectare groot, omvat het woonhuis, een royale deel met open kap, enkele bijgebouwen en een fraai ingerichte tuin met moestuin, fruitbomen en kas.

Panorama's

Laden, een moment a.u.b.

Plattegronden

Berghuizen 40, Maasbommel plattegrond-0
Berghuizen 40, Maasbommel plattegrond-1
Berghuizen 40, Maasbommel plattegrond-2

Contact

Benieuwd wat wij voor u kunnen betekenen? Wij helpen u graag

Fijn dat je contact hebt opgenomen!

We zorgen ervoor dat je spoedig een reactie van ons ontvangt op:

Sorry, we kunnen helaas niet met zekerheid vaststellen of je een mens of een geautomatiseerde bot/spammer bent. Hierdoor kunnen we het formulier dat je hebt ingevuld niet verzenden. Probeer het opnieuw of neem direct contact op met de makelaar via e-mail.

Er is iets mis gegaan met het versturen van het formulier.
Controleer of u alle velden (goed) heeft ingevoerd en probeer het nog een keer.

Persoonlijke gegevens

recaptcha
reCAPTCHA
PrivacyTerms
}