Omschrijving

LEDE 37 ROTTERDAM, een zeldzame ruimtelijkheid binnen de stad

Deze vrijstaande woning staat op Rotterdam-Zuid in de groene oase Tuindorp Vreewijk. Op een perceel van ruim 1000 m² en met 220 m² woonoppervlak biedt het huis een zeldzame ruimtelijkheid binnen de stad. Gebouwd in 1918 als een van de eerste woningen van het toen nieuwe tuindorp – volgens het Engelse tuindorpconcept – staat het pand vrij in het groen met daglicht rondom.

In 2000/2001 is de woning ingrijpend gerestaureerd en gemoderniseerd met behoud van structuur. Er zijn onder meer dubbel glas, vloerverwarming en een nieuw dak aangebracht. Het pand is volledig onderheid en rechtgezet. De erfpachtcanon is afgekocht tot en met 2051, wat zorgt voor stabiele woonlasten. Sinds 2014 heeft de woning de status van rijksmonument; energielabel en verduurzamingslabel zijn beschikbaar.

ACHTERGROND & GESCHIEDENIS
Tuindorp Vreewijk werd op initiatief van het Rotterdamse bedrijfsleven ontwikkeld om de woonomstandigheden structureel te verbeteren. Bij oplevering in 1918 sprak initiatiefnemer K.P. van de Mandele de wens uit: “Zoo moge hier een tuinstadwijk verrijzen, waarin een meer harmonisch leven voor den stedeling mogelijk wordt.”

De stedenbouwkundige opzet is van H.P. Berlage en werd verder uitgewerkt door M.J. Granpré Molière en P. Verhagen. Geen raster, maar bochten, hoven en zichtlijnen; geen restgroen, maar een samenhangend woonlandschap waarin straten, tuinen en plantsoenen één geheel vormen. Wonen was hier onderdeel van een sociaal netwerk met voorzieningen op loopafstand.

Het langdurige corporatiebezit heeft het wijkbeeld herkenbaar en verzorgd gehouden, met collectief tuinonderhoud en een traditie van tuinprijzen. Sinds 2012 is Tuindorp Vreewijk aangewezen als Beschermd Stadsgezicht.

De architectuur is ingetogen; maat en samenhang zijn leidend. Binnen dit ensemble neemt Lede 37 door zijn vrijstaande ligging een bijzondere positie in.

In 2001 was het huis zes maanden als museumwoning geopend onder de naam Lucy Havelaarhuis, verwijzend naar de eerste bewoonster, directrice van het Zuider Volkshuis en actief binnen het sociale leven van de wijk. Wonen en betrokkenheid waren hier altijd verbonden.

BEGANE GROND
De woning ligt vrij aan de singel en is in volle breedte zichtbaar. Via de pergola wordt de royale hal met fraai trappenhuis betreden. De indeling kent een heldere tweedeling: links het woongedeelte met woonkamer/eetkamer en keuken, rechts een grote kamer en suite (thans bibliotheek), geschikt voor werken aan huis, praktijk of meergeneratiewonen.

De begane grond vormt het hart van het dagelijks leven. Verblijfsruimten zijn logisch gepositioneerd en gericht op de tuin. Inbouwkasten, berging en bijkeuken bieden ruime opslag. Openslaande deuren verbinden de woonkamer met het terras dat ’s zomers wordt omsloten door het groen van druiven en vijgenboom.

EERSTE VERDIEPING
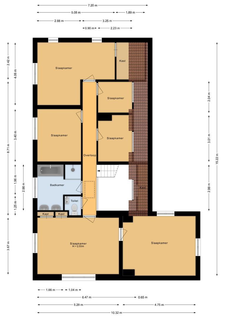
De eerste verdieping behoudt de oorspronkelijke gangstructuur met meerdere kamers, verwijzend naar het historische gebruik. De kamers zijn goed van maat, met daglicht en uitzicht op het groen. De verdieping biedt flexibiliteit voor slapen, werken of verblijven.

ZOLDER
De zolder is bereikbaar via een vlizotrap en vormt een potentieel volwaardige verdieping met stahoogte en droge constructie. Binnen monumentale en planologische kaders kan deze ruimte – na vergunning – worden ontwikkeld voor extra kamers of werkruimte.

De kracht van Lede 37 ligt in de samenhang tussen huis en tuin: vrijheid, licht van meerdere zijden, afstand tot buren en het seizoensritme als onderdeel van het wonen.

PERCEEL & BUITENRUIMTE
De ruime tuin omsluit de vrijstaande woning en vormt een groene uitbreiding van de leefruimte. In de afgelopen jaren hebben de huidige eigenaren deze ruimte zorgvuldig ingericht en onderhouden. Het biedt nu een volwassen groene omgeving met beschutte plekken voor zon en schaduw. Een vrijstaande houten schuur voorziet in berging.

BESTEMMING & RIJKSMONUMENTALE KADERS
De woonbestemming past bij het tuindorpkarakter. Gebruiksvormen als gezinsbewoning, mantelzorg of rustig werken aan huis sluiten logisch aan; intensieve functies niet.

Als rijksmonument staat behoud centraal. Regulier onderhoud is veelal vergunningvrij; ingrepen in indeling, zolder, gevel of dak vereisen doorgaans een omgevingsvergunning. Verduurzaming is mogelijk, mits bouwfysisch logisch en met respect voor monumentale waarden. Er bestaan ondersteuningsregelingen, waaronder laagrentende financiering en de eigen-woonhuisregeling.

Lede 37 vraagt bewoners die zorgvuldig willen gebruiken en ontwikkelen binnen de bestaande structuur.

DOELGROEPEN
Lede 37 past bij bewoners die bewust kiezen voor ruimte en groen in de stad en voor architectuur met rust en maat:
– Gezinnen die buitenruimte zoeken binnen Rotterdam-Zuid.
– Stellen die ruim willen wonen met thuiswerk- of atelierfunctie.
– Samengestelde gezinnen die flexibiliteit zoeken zonder ingrijpende verbouwing.
– Erfgoedliefhebbers die een rijksmonument met respect bewonen.
– Internationale professionals of terugkerende Rotterdammers die bewust voor Zuid kiezen.
– Bewoners met sociale betrokkenheid bij een wijk met gemeenschapszin.
– Liefhebbers van bouwkunst die conserveren boven transformeren verkiezen.

BOUWKUNDIGE STAAT
De restauratie van 2000/2001 combineert comfortmaatregelen met funderingsherstel. Het recente rapport van Bouwtechnische keuring geeft een duidelijke indruk van de huidige bouwkundige staat van de woning.

ENERGIELABEL & VERDUURZAMING
Energielabel en verduurzamingslabel zijn beschikbaar. Met het vervallen van de uitzonderingspositie voor monumenten per 29 mei 2026 bij verkoop of verhuur, is energieprestatie onderdeel van het dossier. Verduurzaming bij monumenten vraagt maatwerk (kierdichting, glas, installaties, ventilatie) met respect voor historische materialen. Beschikbare regelingen ondersteunen instandhouding en toekomstbestendigheid.

LOCATIE & BEREIKBAARHEID
Vreewijk ligt op Rotterdam-Zuid, groen maar stedelijk. De ligging biedt goede verbindingen richting A16 en A15 (Dordrecht, Breda, Randstad). OV-netwerken van tram, bus, metro en trein verbinden snel met centrum en intercityknooppunten. Vreewijk is geen buitengebied, maar een groen woonmilieu binnen de stadsgrenzen.

TIEN REDENEN OM DIT OBJECT TE OVERWEGEN
1. Vrijstaand wonen in Tuindorp Vreewijk met uitzonderlijke tuinmaat voor Rotterdam.
2. Rijksmonumentale status binnen het ensemble aan de Lede, direct verbonden met het tuindorpconcept.
3. Lichtinval van alle zijden; geen eenzijdige oriëntatie.
4. Restauratie en modernisering (2000-2001) met dubbel glas en vloerverwarming.
5. Funderingsingreep met toegevoegde palen – zwaarwegend voor vertrouwen en onderhoudslogica.
6. Stabiel en verzorgd straatbeeld door groot corporatiebezit en sterke tuintraditie.
7. Erfpachtcanon afgekocht tot 2051.
8. Corporatie staat open voor overleg over volledige afkoop.
9. Beschikbaarheid van energielabel en verduurzamingslabel.
10. Een huis voor bewoners die architectuur en woonlandschap serieus nemen en liever behouden dan heruitvinden.

KORTOM
Lede 37 is een rijksmonumentaal huis in een tuinwijk met vaste betekenis in de Nederlandse stedenbouw en volkshuisvesting. De kwaliteit zit in samenhang: huis en tuin, buurt en structuur, comfort en behoud. Een plek die vraagt om aandachtig bewonen.

WAAROM REDRES DIT OBJECT VERKOOPT
Redres werkt als bouwkunstmakelaar vanuit inhoud: architectuurhistorie, bouwkundige logica, materiaal en context. Een rijksmonument in een tuindorp vraagt om die benadering, omdat de koper niet alleen meters koopt, maar ook verantwoordelijkheid voor ensemble en straatbeeld.

INTERESSE & BEZICHTIGING
Voor wie zich aangesproken voelt door karakter en mogelijkheden is nadere kennismaking mogelijk. Redres geeft inzicht in historie, huidige staat en toekomstkansen binnen de monumentale kaders. Een bezichtiging kan in overleg worden gepland.

Kenmerken

Overdracht

Vraagprijs
€ 1.325.000 k.k.
Status
Beschikbaar
Oplevering
In overleg
Adres
Lede 37
Postcode
3075 HG
Plaats
Rotterdam

Bouw

Soort woonhuis
Villa, Vrijstaande woning
Soort bouw
Bestaande bouw
Bouwjaar
1918
Onderhoud binnen
Goed
Onderhoud buiten
Goed
Bijzonderheden
Monument

Oppervlakten en inhoud

Woonoppervlakte
ca. 220m²
Perceeloppervlakte
ca. 1.052m²
Overig oppervlakte
ca. 44m²
Inhoud
ca. 986m³

Indeling

Aantal kamers
8
Aantal slaapkamers
6
Aantal badkamers
1
Aantal verdiepingen
3
Voorzieningen
Mechanische ventilatie, Alarminstallatie, Buitenzonwering

Energie

Energielabel
D
Isolatie
Dakisolatie, Muurisolatie, Vloerisolatie, Dubbel glas
Warm water
C.V.-ketel
Verwarming
C.V.-ketel, Vloerverwarming gedeeltelijk
Ketel
(2016, Combi-ketel, Eigendom)

Buitenruimte

Ligging
Aan het water, Aan rustige weg, In woonwijk, Vrij uitzicht
Tuin
Tuin rondom
Schuur
Aangebouwd hout
Faciliteiten schuur
Voorzien van elektra

Ligging & Locatie

[ { "lat": 51.8887262, "lng": 4.511711, "heading": 0, "pitch": 0 } ]
Bekijk kaart

Plattegronden

Lede 37, Rotterdam plattegrond-0
Lede 37, Rotterdam plattegrond-1
Lede 37, Rotterdam plattegrond-2
Lede 37, Rotterdam plattegrond-3

Contact

Benieuwd wat wij voor u kunnen betekenen? Wij helpen u graag

Fijn dat je contact hebt opgenomen!

We zorgen ervoor dat je spoedig een reactie van ons ontvangt op:

Sorry, we kunnen helaas niet met zekerheid vaststellen of je een mens of een geautomatiseerde bot/spammer bent. Hierdoor kunnen we het formulier dat je hebt ingevuld niet verzenden. Probeer het opnieuw of neem direct contact op met de makelaar via e-mail.

Er is iets mis gegaan met het versturen van het formulier.
Controleer of u alle velden (goed) heeft ingevoerd en probeer het nog een keer.

Persoonlijke gegevens

recaptcha
reCAPTCHA
PrivacyTerms
}